别墅设计| 4的初衷是将空间、文化、人的情感和自然结合成一幅画面,用简单而有力的艺术语言,展现“高贵而高贵的精神”的奢华风格。


根据客户的需求,设计师将该项目的风格定义为现代风格和欧洲风格的结合。设计师将这两种风格元素结合起来,寻找两代人之间的平衡点,精致的欧式风格,现代气息,个性的共性,两代人的生活系列!
整个项目有四层,负一层是车库和休闲空间,一层是客厅空间,二、三层是卧室空间。空间宽敞、大气、人性化,整个空间升级。结合顾客的生活方式和习惯,每个独特的私人空间都属于他们。每个场景的转换似乎讲述了不同的故事,也似乎包含了独特的含义。
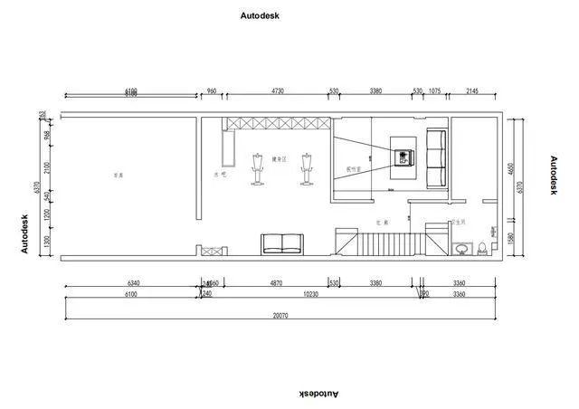
负层
负层原始平面图



负楼层平面布置图
负地板用作休闲娱乐空间,包括视听室、健身区、水吧和休息室,贯穿整个大空间,享受绝佳体验。没有太多的装饰,通过独特的细节,如悬挂的图片和灯笼,我们可以添加神秘,创造一个舒适的感觉,符合生活。
一楼健身区
跑步机的设置符合健康生活的理念,保证家庭有足够的体育锻炼,使身体更加健康强壮。
一楼健身区



多功能厅,看电影不要太酷,通常和三五个人交朋友,在酒吧喝点小酒,然后坐在沙发上看电影,从此告别电影票!整个储物柜有足够的储物空间!
作为公共区域,一楼空间包括客厅、餐厅、厨房和室外花园。整体空间格局透明、自由、开放,客厅主次空间充分利用瓷砖马赛克设计进行分割,给人视觉上清晰的协调性和层次性。



空间的主色是米色。通过壁纸、局部主辅造型和软衣服的搭配,创造出一个优雅、高贵、奢华的生活空间。在设计细节方面,经典的欧洲线条勾勒出分层的造型轮廓,适当的色彩对比和精细的细节节点丰富了整体视觉体验。
客厅里完美展示了欧洲的魅力。白色天花板摒弃了传统欧洲风格的复杂和夸张,用简单的线条将
设计师完全打开了空间,从地板到天花板的窗户取代了厚墙,使内部和外部相互连接。
开放式厨房与餐厅融为一体,餐桌旁的橱柜具有餐桌储物功能
餐厅的圆桌相对应,这无意中拉近了两代人之间的距离。低矮橱柜中的储物空间也能填满空间。一楼餐厅
开放式厨房利用岛屿和露台隔断增加厨房的整体空间效果,同时可以更有效地与餐厅联系,使整个家庭氛围更加活跃,厨房成为一个社交空间。
习惯了同样的白色厕所,我总觉得有点厌倦美学。给马桶涂上不同的蓝色会产生不同的视觉效果。
老年人房间的设计不仅注重安全性,更注重室内的温暖效果。两张床头柜摆放简单,靠窗的壁柜与墙纸自然过渡,没有复杂的家具,营造出一个简单、优雅、轻盈、舒适的老年房间。
榻榻米、衣柜和书桌连在一起,一个小房间可以满足如此多的功能需求。
二楼客房



浴室的湿区和干区由DIA淋浴房隔开,因此淋浴时水不会溅出,这将导致浴室潮湿并滋生细菌。
暖色搭配的整体运用给家居带来了一种舒适宁静的感觉,而柔和的组合色主要是低饱和度,以缓解空间压力。
浴室的简单线条非常艺术,开放式浴缸设计在高档灰色空间的基础上融入了一些金属元素,延续了浴室的现代简约风格,充满了高档质感和丰富干净的层次感。
三层浴室50婚房,现代风格与欧式风格混搭,连接两代人的生活
转载请注明出自轩鼎别墅设计="://lemeizhai.com" target="_self">://www.lemeizhai.com