农村20万元的="://lemeizhai..com" target="_self">二层简单漂亮的小别墅让你越来越喜欢,户型合理
最近,越来越多的人在农村地区盖新房。在这里,提醒我们记住三点。首先,建房子应该根据你的实际需要和生活习惯来设计,不要模仿别人;其次,建筑预算必须提前了解,量力而行,以免建筑过程中资金短缺,延误工期或停滞不前;三是建筑图纸要合理实用,以户型为主,外观为辅。
在这里,边肖推荐了一栋今年发生爆炸的农村两层建筑。外观简洁美观,户型合理实用,非常适合农村地区的建筑。让我们看看。



建筑宽度:11.06米;建筑深度:9.76米;建筑面积:115.48平方米;建筑面积:199.8平方米;建筑层数:地上2层;建筑高度:6.3米;结构形式:砖混结构
这是一个小型两层农村别墅的设计图。整体设计简单实用。在农村地区修建很容易,而且造价很低。主体只需要20万元左右。二层高度略低,非常适合有高度限制的农村自建房屋。如果没有高度限制,二楼的高度可以自己提高。从外观上看,它看似简单,但设计精巧,造型流畅,色彩搭配和谐。


一楼有一个玄关,不仅起到挡风遮雨防晒的作用,还起到装饰建筑美观的作用。同时,也增加了二楼露台的面积,简单却不简单时尚。
当你看到这个时,你可能会奇怪为什么房子后面没有窗户。下面的计划可以向你解释前面和侧面的照明是足够的。如果一所房子被窗户包围,它将不可避免地缺乏隐私、温暖和舒适。
一楼平面图:客厅,3间卧室,餐厅,厨房和浴室。
由于公寓面积小,设计非常合理紧凑,空间利用率极高。一楼只有110平方米的土地,要设计三间卧室并不容易,也不影响其他功能空间的使用。
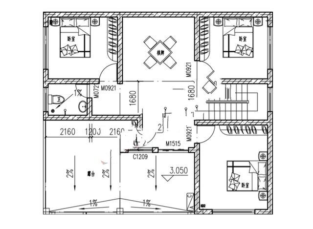
平面图:棋牌室,3间卧室,浴室和露台。
在二楼,不仅有三间卧室,还有一个宽敞的娱乐室供家庭休闲聚会。同时,还有一个大型室外露台,为居民提供了一个户外活动的场所。
这栋总建筑面积不到200平方米的两层楼的公寓设计合理。这里不仅有6间卧室,足够一个多口之家居住,而且其他必要的功能和辅助功能也齐全。它是小型自建房屋的理想选择。
转载请注明出自轩鼎别墅设计="://lemeizhai.com" target="_self">://www.lemeizhai.com