这座14.7×10.8米的="://lemeizhai.com" target="_self">两层乡村别墅美丽而大气,并附有一张真实生活的地图
当你老了,你可以回到农村。
建一座前面有几棵树的小房子。
闲暇时坐在树下乘凉,听着鸟儿的啁啾,
看着远处的池塘,
你可以听一首歌并哼唱;
或者学习一种表达感情的工具。
时也从容,心也从容。
天空湛蓝,白云舒展,
偶尔,鸟儿经过,暖风送来鲜花。
发呆或做任何事。
或者去书房看书,听听别人的心路历程。
理解生活的各个方面,
枕头上的诗和书放在一个好地方,
门前的风景是雨天。
我有自己的小屋,可以住好几年。
建筑参数:
占地面积:14.7米10.8米
占地面积:158平方米
建筑面积:280平方米
建筑结构:砖混结构
楼层数:2层
主要预算:300,000
渲染


实景地图


黑暗的外观让人感觉平静,外墙用真正的石漆粉刷,光滑美观。中间有文化宝石,它们相互匹配。同时,他们有一种独特的力量感和优雅感。再加上中间部分的凸起和边角设计带来的时尚感,可以说这座两层别墅非常有吸引力,人们不能忽视它的存在。形状是独特的,这是对施工队水平的考验。然而,当我们看现实生活中的地图时,我们可以谈论恢复美丽并突出它


一楼有客厅、餐厅、厨房、客厅、两个浴室和两个卧室。一楼布局合理,构思巧妙。它进入东侧的家庭,有一个很宽的进入家庭的平台,显示出高贵的品味。进门经过大厅时,可以打造一个鞋柜,方便进出。厨房区域由装饰性的隔板隔开,不会相互干扰。餐厅和厨房相邻,滑动门分开,方便用餐。中间是客厅,角落设计,落地窗,充满灯光,时尚而愉悦。楼梯下还有一条景观带。
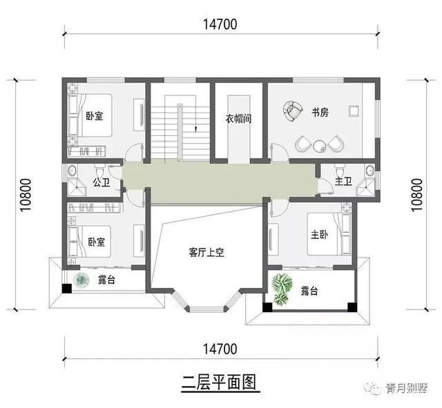
二楼有3间卧室、书房、衣帽间、2间浴室和2个阳台。二楼有三个卧室,其中两个卧室有面朝南的露台,浴室由一块石头隔开,这是对称的。学习区域足够大,可以满足日常工作和生活的需要。布置一个大书架就足够了,它也可以用来招待客人。它非常时尚。衣帽间是单独设置的,面积足够大,可以满足家庭生活的需要。
这座两层别墅外观精致大气,内部功能设计不丰富,但绝不单一。最重要的是它有很高的生活表现。可以说,在农村建房很划算。主要费用是300,000英镑,一般农村负担得起。此外,它有五间卧室,这充分满足了农村生活的需要。还有现实生活中的地图供参考。
转载请注明出自轩鼎别墅设计="://lemeizhai.com" target="_self">://www.lemeizhai.com