300平方米的="://lemeizhai.com" target="_self">大型自建别墅设计图纸,低调奢华有内涵
在农村,很多朋友一时不知道如何建造一个大的家园,他们担心费用会超标。的确,小单位更容易规划,但大单位需要更合理的设计。今天,边肖推荐了几个300平方米左右的大型农村自建别墅的设计图,看看人们是怎么做的。
第一套:带露台的三层自建别墅
别墅风格:现代
占地33,360,300
估计费用为:64万英镑
这座别墅有:层和三层
建筑面积: 15.8米19米
建筑面积为33,360,443
建筑结构:框架结构
:露台功能房



这是一栋带露台的现代化三层别墅。整个别墅采用木质结构的彩色外墙,简洁大方。黑色人字屋顶宁静大方,雨天排水方便。别墅的一侧有一个车库,面积很大,不仅可以停放日常车辆,还可以供游客使用,非常方便。



从院门进入,门后设置了一堵影壁,以保护别墅的隐私。然后是前院,你可以从那里进门或进院子。庭院面积大,可以用花草树木装饰,也可以搭建一个休闲平台,供家人日常休闲使用。
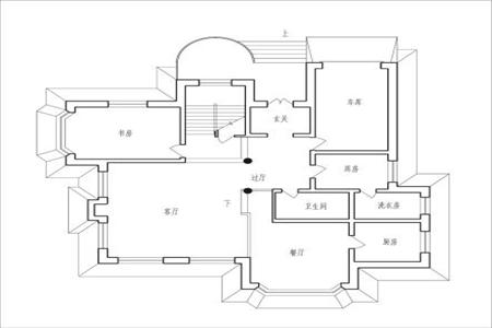
入口门在一楼设有公共厕所和楼梯井,然后是厨房和餐厅。餐厅面积大,可以容纳很多人,厨房面积大,可以用各种方式烹饪。餐厅和厨房融为一体,方便用餐。二楼设有家庭礼堂、露台、过道、公共厕所、三间卧室、阳台等。主卧室面积大,使用起来更宽敞舒适。露台面积相对较大,可用于日常休闲或种植花草、装饰房屋等。
三楼设有露台、过道、公共卫生间、四间卧室、阳台和卫生间等。二楼和三楼主要是休息区,有很多房间,可以供人多的家庭使用。卧室之间的距离相对较近,这便于家庭成员之间的日常交流和相处,增加他们的感情。
第二套:二楼带车库的自建别墅
别墅风格:现代
占地面积33,360,306
估计费用为3.336038亿英镑
别墅二层有:层
该建筑占地面积: 18m17m
建筑面积为33,360,350
建筑结构:砖混结构
功能室:客厅空车库书房




这是一栋现代化的带车库的两层别墅。别墅的外墙采用米色外墙砖的碎石砖,简单、清新,有一种淡淡的温暖。一楼底部设置基础平台,减少一楼房间的潮湿。门前有自动扶梯和白色栏杆,这使得门更加精致,给入口增添了一种仪式感。大门附近有一个车库,方便家里有车的朋友。
入口门,一楼有门厅、客厅、书房、仓库、卫生间、洗衣房、餐厅和厨房。一楼公寓紧凑,餐厅与厨房相连,方便一家人用餐。其次,功能房布置合理,方便家庭成员在日常生活中使用。客厅面积相对较大,对人们和家庭成员来说非常舒适和体面。二层设有卧室(带室外平台)、浴室、卧室、主卧室套房(带浴室、门厅衣柜和室外平台),客厅受刻板经典的复式建筑模式调控,不仅方便了一、二层家庭之间的交流,也让房子看起来更加豪华。
第三套:二楼带庭院露台的自建别墅
别墅风格:现代
占地33,360,300
估计费用为:58万英镑
别墅二层有:层
该建筑占地面积:平方米
建筑面积为33,360,389
建筑结构:砖混结构
功能室:阳台衣帽间




这是一栋带露台的现代两层别墅。整体设计结构特殊,外观精致美观。门口有一个晒太阳的房间,可以用来晒衣服或日常休闲。从门厅和室内进入,有一个避难所,两边有茶室、工艺室和花池。总的来说,它既古老又迷人,在招待客人时也很有面子。
从防空洞进入大门,一楼设有玄关、客厅、餐厅、厨房、公共卫生间、卧室套房(带衣帽间和卫生间)等。
在二楼,有两个大的室外阳台:室外阳台,没有头发的树,储藏室,两居室套房(带衣帽间和干湿厕所)。室外阳台或露台可用于日常干燥、休闲区或家庭烧烤。住在这所房子里充满了乐趣。
第四套:二楼带车库的日本自建别墅
别墅风格:现代
占地面积33,360,292平方米
估计费用为3.336073亿英镑
别墅二层有:层
建筑面积: 17.5米16.7米
建筑面积为33,360,484
建筑结构:框架结构
:车库露台功能室




这是一栋现代日式别墅,二楼有车库。别墅整体设计风格为日式,外观简单大方,装饰很少。它喜欢用积木模块化和几何作为积木,给人一种安静、干净、优雅的感觉。这座别墅还堆叠了几个广场。窗框与大门搭配合理,符合一般家庭生活逻辑,注重实用性。大门是用倾斜的屋顶和木制结构设计的,非常特别。大门旁有一个车库,方便一家人开车回家和进门。
主楼有一个平屋顶的房子,用作储藏室和设备室。这种设计非常人性化,所以这些设备不会打扰家庭的日常休息。别墅的一楼是一家超市,入口旁边设计了一套主卧室套房(带卫生间)。这是方便家庭观看守夜,有客人和观看超市。住宅入口位于湿入口的另一侧。进入住宅大门,上楼,进入家庭生活区。
二楼有客厅、休闲区、西式厨房(烤盘)、电炕休息区、主卧室、浴室、更衣室、淋浴房、卧室、中式厨房、餐厅等。二楼有两间卧室,两个中西式厨房,满足了家庭成员不同的生活需求和品味。这种房子可以满足在家经营超市和做小生意的朋友。
转载请注明出自轩鼎别墅设计="://lemeizhai.com" target="_self">://www.lemeizhai.com