该村="://lemeizhai.com" target="_self">一层平顶别墅的设计图纸售价10万元,父母生活无忧



农村一层自建房屋也很受大家欢迎,一楼的房子住起来更舒服。家里有老人更方便,所以不用担心老人上下楼梯会绊倒。下面推荐的自建住宅采用平屋顶设计,有四个房间、两个大厅和两个浴室,基本上满足了它所经营的农村家庭的生活需求。整个屋顶还可以作为干燥平台,符合农村的生活习惯。主要费用只有100,000元,所以回村里建一套吧。
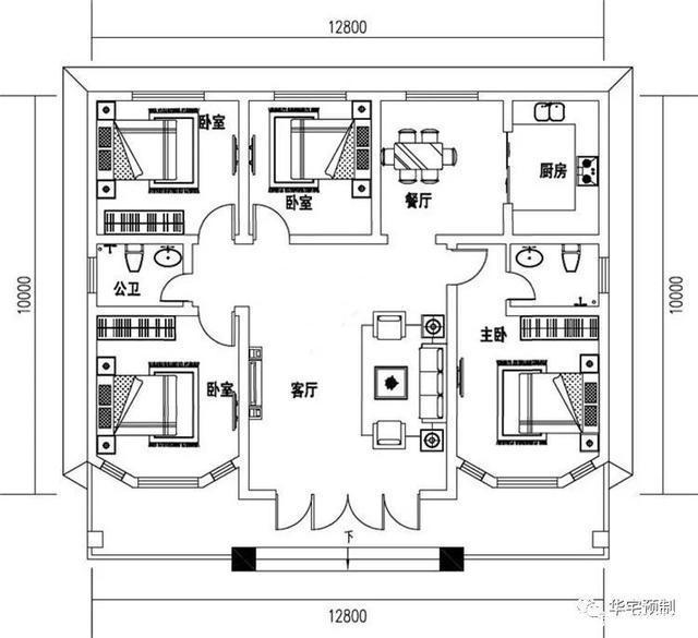
该公寓是一栋乡村平顶住宅和别墅的设计图,推荐采用单层平顶。它外观精美小巧。这是一个客厅,有四间卧室和许多房间。餐厅与厨房相连,八角形窗户的设计使整个建筑非常时尚。
占地面积:12.8米* 10米,约130平方米;
建筑高度:一层;
建筑高度:4.8米(含屋顶);
设计功能:


一楼公寓:客厅、餐厅、厨房、主卧室(带卫生间)、x3卧室、卫生间;
装饰效果图:



转载请注明出自轩鼎别墅设计="://lemeizhai.com" target="_self">://www.lemeizhai.com