河南新乡韩总在7月初找到我们设计,当时韩总的意思很明确,要设计="://www.lemeizhai.com/m/Picture.asp?PicClassID=91" target="_self" title="三层欧式别墅">三层欧式风格别墅,找到我们这里,跟笑笑沟通了很长时间,最终交定金后,开始由方案设计师负责方案设计。

方案设计阶段:当时业主提供了很明确的方案布局,如下图:


根据业主提供方案,由方案设计师进行优化处理,最终确定方案如下:
一层平面图:
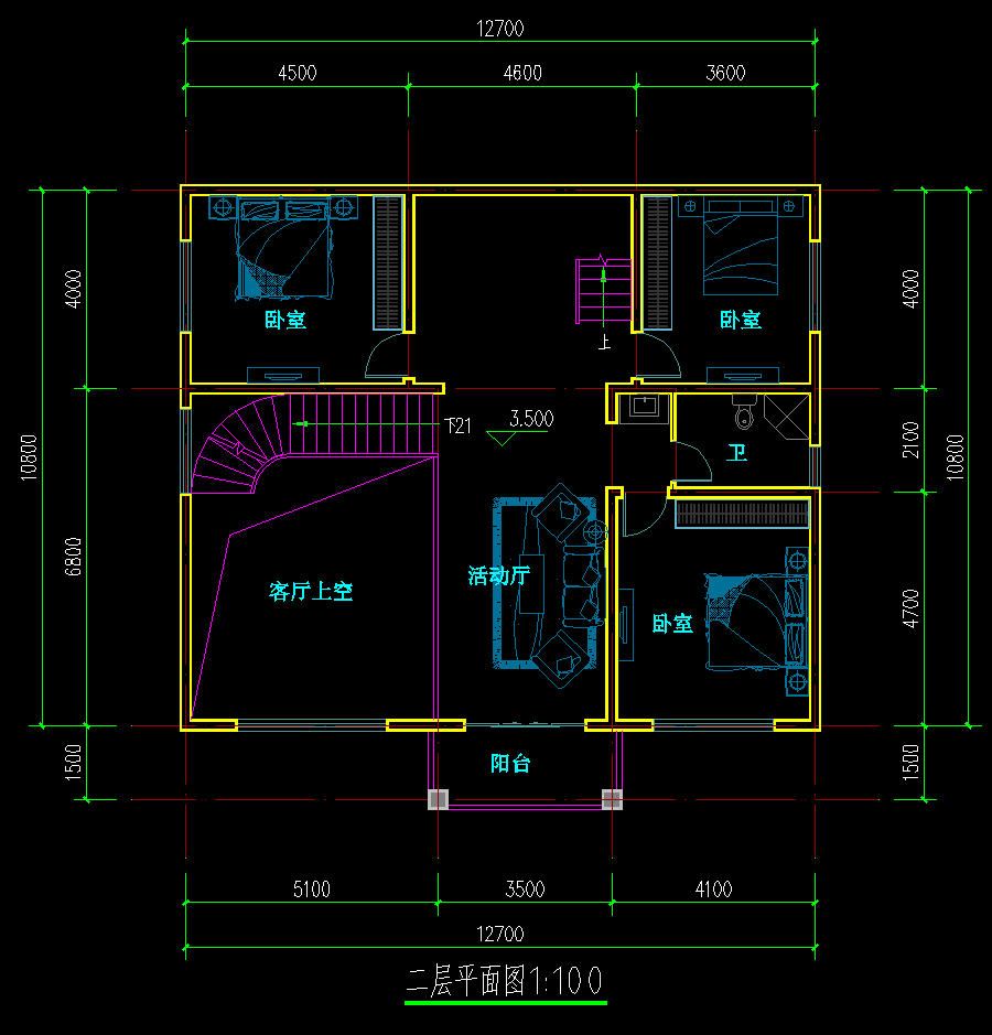
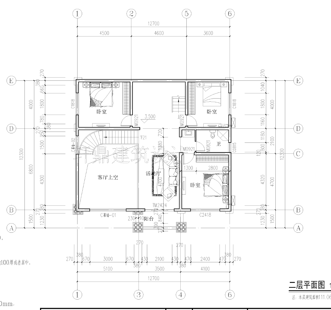
二层平面图:

三层平面图

平面方案确定好,开始由效果图设计师设计效果图。
最终效果图如下:

效果图也是经过跟业主的方案沟通,最终确定,然后交由其他施工图设计师开始全套施工图设计
经过5个工作日的设计,建筑施工图,结构配筋图,电气施工图,给排水施工图,全部设计完毕,截图如下:
