三栋="://lemeizhai.com" target="_self">乡村两层别墅的设计图纸不仅有脸,而且让你更加光彩照人
此外,越来越多的人回到农村老家建造自己的别墅,这主要是因为这些来自农村的朋友通常有一种“留守根”情结。回到家乡盖房子不仅是为了供养父母,也是为了当我老了的时候能有自己的养老之所。既然生活从这里开始,那么它就在这里结束,你不这样认为吗?今天,我推荐这个非常实用的两层农村别墅。建造它不仅能挽回面子,还能让你更加辉煌和繁荣。
方案一:高贵的两层别墅
房屋概况:这套公寓是一套三居室的经典英国两层别墅设计。农村建设者的要求越来越高,同样的欧洲风格已经不能满足他们的要求。英语还有另一个美。这座别墅是英式的,外观和线条都很优雅,到处都很精致和昂贵。有阁楼地板和三扇老虎窗户,看着卡其色的真石漆和深棕色的斜屋顶很舒服。整个空间布局舒适、大气、实用。



方案二:推荐用于乡村两层建筑,大气简约
房屋概况:该公寓为农村地区二层简单大气的设计方案。推荐自建别墅进行公寓设计和复式客厅设计,面积不超过150平方米。外墙用白色真石漆装饰,配以蓝色坡屋顶。整体色彩简单自然,富有层次感,室内布局流畅,尺寸划分合理,框架结构合理,主要造价约42万元。很多人喜欢欧式外观的欧式乡村别墅,乡村的水田、草地、树木的美丽景色,就像一幅画,让人永远也不会期待。然而,今天推荐给你的这座田园诗般的别墅建成后,一定会成为别人眼中的一道亮丽风景。




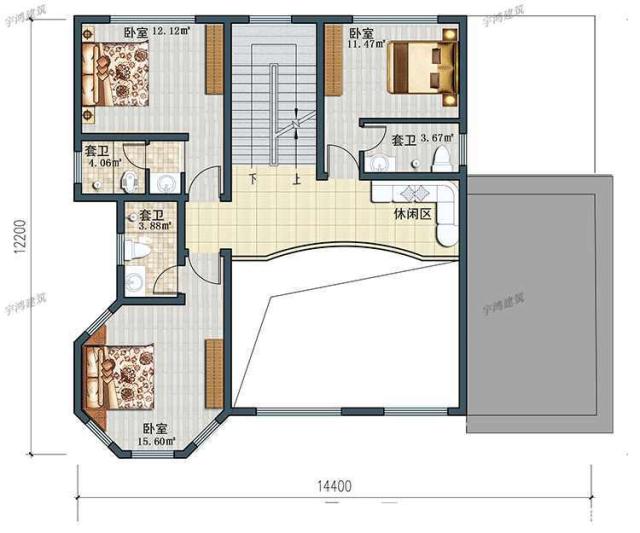
方案三:YH花园中式别墅外观渲染-A-2005
房屋概况:该公寓为带庭院的中式别墅的效果图和全套设计图纸,包括外观图片、独立车库、大空间和多间卧室。海湾相对较大,外墙用灰色瓷砖装饰。在院子里种些树,种些花和植物,给生活增添乐趣。虽然在农村地区建造房屋和宅院有一定的局限性,但通常有足够的空间来建造庭院,这不仅实用,而且增加了空间感。现在,农村有很多车,所以你可以把车停在院子里或车库里。



转载请注明出自轩鼎别墅设计="://lemeizhai.com" target="_self">://www.lemeizhai.com