12.2*11.="://lemeizhai.com" target="_self">7三层欧式乡村豪华别墅。你想要的所有别墅都有设计。
在过去,大多数人在农村自建造房屋,然后将人口融入他们的家庭,并制定他们自己的建筑计划。当时,它完全基于需求,在乡村建筑中几乎没有美学表达。但是现在在农村,不管你怎么修理,这都是一个不可忽视的美学问题。
这座别墅采用框架结构。主要成本:450,000-500,000。覆盖面积:91.53平方米。这是一栋12.2米* 11.7米的
。这座三层的欧式乡村别墅错落有致,充满层次感和强烈的立体视觉冲击。底层为棕色真石漆,主体为白色真石漆。屋顶由经典的红砖制成,颜色搭配非常和谐。大落地窗和多层外窗的设计不仅能使别墅美观,而且能很好地兼顾别墅的采光和通风。罗马圆柱和门口的金色雕刻给别墅增添了一丝奢华。朱红色的大门象征着吉祥,深受农村人的喜爱。



进屋很符合传统乡村建筑的特点,而且很好地切断了空间,避免了开门见山的麻烦。如果你不喜欢主房间的设计,你可以把它改成精致的门廊,这也是一个不错的选择。右侧的中空客厅非常华丽,外城的落地大窗户阳光明媚,室内透明明亮。左边有两间卧室,一间有独立的卫生间,另一间有卫生间,可以供腿脚不便的老人使用。右上角的封闭式厨房可以减少油烟污染,还有一个很方便的小后门。餐厅旁边还有一个小杂物间,方便存放日常杂物。
上了螺旋楼梯后,二楼有两间卧室,左上角的卧室可以作为主卧室,有独立的浴室和衣帽间,面积大,功能齐全。左下角的露台可以更好的满足日常的干燥需求。中间的客厅也是招待亲友的地方,也可以改造成茶室,靠近中空的客厅,靠近阳台。
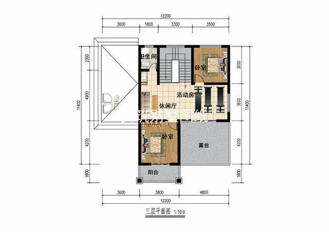
三层楼和两个斜卧室可以更好地保护居民的隐私,中间的休闲厅和活动室是休闲娱乐消磨时间的好地方。右下角的露台是和亲朋好友一起看风景、乘凉赏月的好地方,或者是打造一个空中花园,这是一个很好的选择。
转载请注明出自轩鼎别墅设计="://lemeizhai.com" target="_self">://www.lemeizhai.com