="://lemeizhai.com" target="_self">中式四合院别墅设计,简单而经典,比城市里的别墅还要漂亮
基于农村民居贴近自然的特点,中式庭院的质朴经典无疑成为农村自建住宅所追求的建筑风格。今天向您介绍的这个中式庭院不仅考虑了农村生活的实用性,还考虑了整体的美学外观,确保它比农村的别墅更漂亮!
主要信息
宽度:32米
深度:11.7米
建筑面积:225.42平方米
主要成本:约340,000
建筑结构:砖和混凝土
农村人更加相信和尊重传统民俗。基于此,他们在建造房屋时,还会刻意保持房屋的传统特色,如木材、石板、梁柱等天然材料。整体家居环境也是从简单、自然、天真和舒适的角度设计的,受到许多寻求回归自然的人的喜爱。



泡泡阁的设计也是庭院中的亮点,既保证了原有的传统建筑风格,又增加了现代生活的需求。
接待室的门是用木板铺成的,既漂亮又干净。多窗设计提高了整个房间的采光和通透性,让客人可以享受到更好的舒适体验。
编辑搜索地图



庭院中有许多花草的景观设计,使人感觉亲近自然,这是乡村住宅所需要的自然美。
对于农村人来说,无论房子建得多漂亮,房子的实用性都不能忽视。如果房子建得这么大,如果能全方位使用,就只能算是农村人最喜欢的房子了。
让我们看一下平面效果图:


让我们看一下平面效果图:

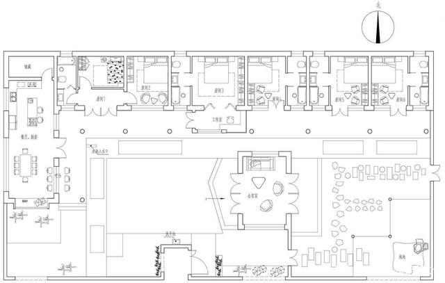
介绍:6个房间,1个客厅,5个浴室,1个厨房,1个储藏室,1个接待室和1个泡沫池。
从别墅的平面图渲染可以看出,庭院设计占地面积大,居住空间合理。房间里有6间卧室。

门的设计由庭院走廊统一,餐厅和厨房位于最内侧,储藏室位于厨房周围,方便存放厨房食物。接待室是院子中间的一个单独的房间。前门和后门都开着。当没有客人的时候,它也可以用作日光室。还有:泡泡池、休闲厅、泳池景观区等。在院子里,这是真正接近自然和舒适的生活体验!
转载请注明出自轩鼎别墅设计="://lemeizhai.com" target="_self">://www.lemeizhai.com