在农村能花8万元建一栋别墅吗?这栋="://lemeizhai.com" target="_self">一层自建的别墅简单、经济又实用!
农村地区的许多年轻人去城市工作、学习或生活,但老年人基本上喜欢留在农村。他们不适应城市的复杂性,他们一辈子都不能离开熟悉的环境。然而,农村地区的许多房屋破旧不堪,居住不舒适,存在安全隐患。当我们的生活条件允许时,我们应该记住不要让老人受委屈。事实上,翻新和重建一楼的房子并不需要花很多钱,但是如果设计得当,它可以在10万年内建成。今天,边肖来推荐一套一层农村自建住宅的设计图,售价8万元。外观简单,户型非常合理。不仅老年人生活舒适,我们回到家乡也能生活。
正面效果图

图纸的详细参数:
建筑宽度:13.6米
建筑深度:11.7米
建筑楼层:地上一层
建筑高度:檐口3.6米,屋顶5.8米
建筑结构:砖混结构
东南侧透视图

这个一楼乡村庭院的设计图外观简单大方。外墙采用棕色文化石和淡黄色仿砖墙,非常和谐醒目。深蓝色的坡屋顶和纯白色的腰线屋檐和柱子,整个别墅是丰富和立体的。南边有一个门廊,老年人在闲暇时坐在门廊下欣赏凉爽的风景非常舒服。
北侧效果图

别墅后面干净整洁,采光面积大,改善了一楼别墅内部黑暗的弊端。
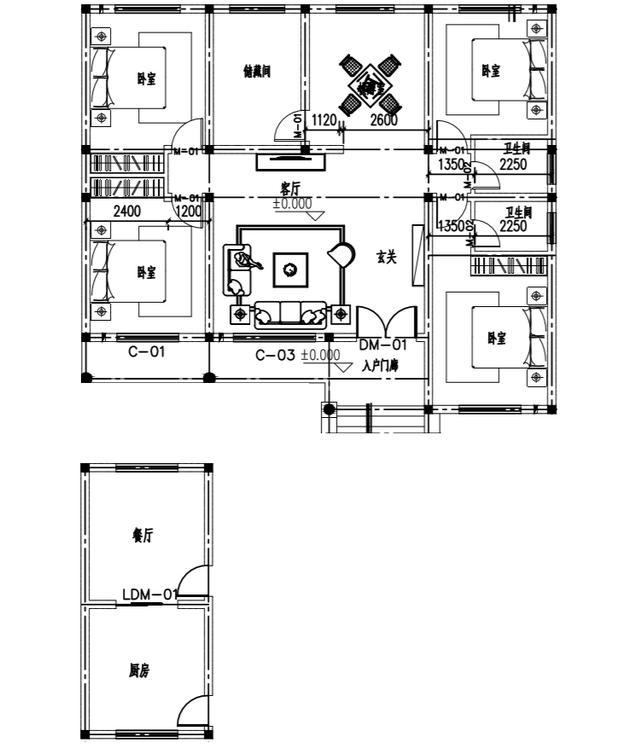
平面平面图

入口有门廊设计,这使得遮阳和乘凉变得实用。共设计了四间卧室,东南主卧室带独立浴室。中间是一个宽敞的客厅,北面是储藏室和娱乐室。厨房和餐厅采用独立设计,避免了室内油烟的困扰,更方便农村地区使用的土炉厨房。如果宅基地没有这么大的面积作为单独的厨房,储藏室也可以改成厨房,棋牌室可以作为餐厅,这在设计中已经考虑到了,适合各种家庭情况。
这栋一楼别墅的主要价格约为8万英镑,有四间卧室。老年人通常住在南主卧室,宽敞、舒适、方便。当他们的孩子回家时,有许多房间可以住。这是一个非常实用的农村地区的一楼房子。生活舒适,不会给我们造成很大的经济负担,是农村经济适用房的首选。
转载请注明出自轩鼎别墅设计="://lemeizhai.com" target="_self">://www.lemeizhai.com