这座简单的="://lemeizhai.com" target="_self">欧式三层别墅已经成为农村地区自建的爆款建筑。只有在仔细理解之后,现存的真理才被发现

近年来,越来越多的新别墅被建在农村地区,许多人推倒重建旧房子几十年了。然而,问题是这种攀比心理导致许多已建别墅华而不实,钱少但不实用。在农村建房子不能忽视的一点是农村地区的生产力和当地的生活习惯。一个好的房子是美丽的,同时,它必须最好地满足家庭的生活需求和独特的习惯。
今天,边肖推荐了一个简单的欧式三层别墅,既可以南北使用,不仅有一个大露台,还有一个屋顶平台。每层都有一个主卧室套房,厨房有一个后门,无论是内部维修还是外部维修都不能错过。
别墅正面效果图

建筑宽度:12米
建筑深度:12米
占地面积:150平方米
建筑面积:438平方米
建筑层数:地上三层
结构形式:砖混结构
建筑高度:三楼檐口11.2米,三楼屋顶11.6米,楼梯间顶部14.1米
12x12农村住宅设计的别墅外观为欧式风格,外墙为黄色大理石般的真石漆,蓝色波纹瓦屋顶,整体效果豪华大气。门的宽大风格增强了仪式感。顶层有一个楼梯间,通向屋顶平台,提高了空间利用率。
别墅背景效果图

别墅的背面设计遵循积极的整体风格,但更加简洁,整体性非常好。采光面积很大,增加了整个别墅的采光和通风性能,后门为日常生活提供了极大的便利。
建筑的平面图

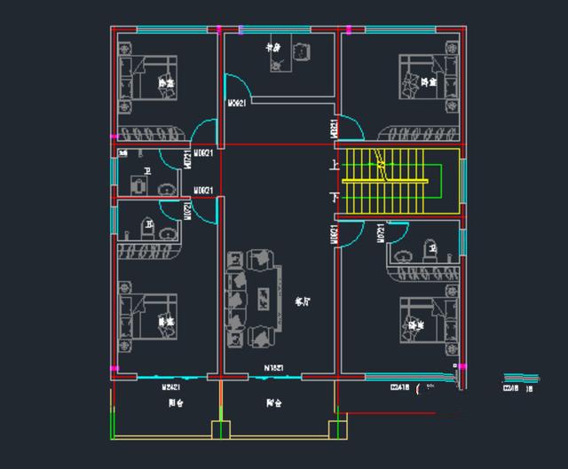
让我们看看室内公寓的设计。一楼通过门进入房间,面对着宽敞的客厅。客厅和餐厅相互沟通,照明和通风良好。餐厅与厨房相连,在南面有一个老人房间,方便老人的日常生活。在大楼的北面还有第二间卧室,也可以用作客房或仆人室。公共卫生在大楼中间很容易使用。
二楼平面图

作为家庭的主要休息区,二楼设计有四个卧室,其中两个主卧室在南部有独立的浴室。中间是一个宽敞的客厅,可用于家庭休闲和娱乐。客厅的北面有一个书房。
三层计划
三层公寓的设计与二楼相似,只是东南角的卧室改成了露台,在室外放松或晾晒衣物非常实用。
这座三层别墅占地150平方米,属于中型公寓类型,在农村也很常见。九间卧室的设计没有人,面积也不小,采光和通风都很好。此外,整个平屋顶被做成屋顶花园。想象一下家里有一个150平屋顶的花园是什么感觉。通过阶梯建筑直接进入屋顶非常方便。当然,在农村地区晒干粮食作物也很方便。
转载请注明出自轩鼎别墅设计="://lemeizhai.com" target="_self">://www.lemeizhai.com