="://lemeizhai.com" target="_self">农村自建12米宽房屋设计图简单实用,造价低廉
户型方正有多重要?一般来说,我们在买商品房的时候比较注意这一点,主要是担心公寓布局不好会带来采光和通风的问题。自建房屋也是如此,应该多加注意,更不用说我们传统观念中的风水问题了。方正公寓布局非常有利于建筑的整体二次装修,内部布局更加随意。方正公寓的布局将在施工和施工过程中更加方便,避免不必要的失误造成的返工,从而降低成本。
本期,我们推荐一套非常方形的公寓,面积适中,非常实用
外观渲染:

非常低调的自建住宅设计方案,低调意味着他的外墙颜色相匹配,整体造型和细部设计仍然非常高调和别致,而立柱、花瓶柱、凸窗式和凸窗都体现了他的设计感。建筑设计尺寸:宽12米,深11.7米,建筑面积140平方米,总高度11.96米;
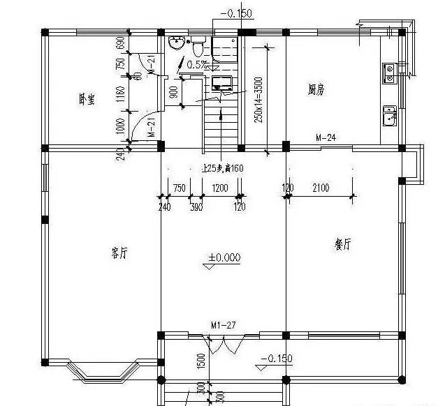
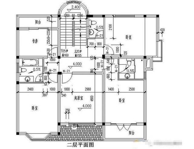
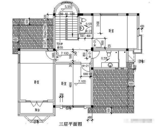
布局图:



设计功能:一楼设计有一个主房间,客厅,卧室,豪华餐厅,厨房和一个独立的浴室;二楼设计有客厅和三个卧室,其中两个是套房,一个太阳桌,一个带凸窗,另一个独立的书房和带阳台的浴室;三层设计有三间卧室,一间带阳台,一间带凸窗,一间大浴室和一间小浴室;
三楼七间卧室的设计非常实用。餐厅稍微大一点,可以把棋牌室和餐具室分开。室内布置使干湿分离和洁净分离,非常实用。
转载请注明出自轩鼎别墅设计="://lemeizhai.com" target="_self">://www.lemeizhai.com