="://lemeizhai.com" target="_self">三层别墅的设计施工图为:宽10.8米,深12.3米,首层面积135.8平方米;建筑面积是358
现在,为什么越来越多的人在农村竞相建造自己的别墅?
为什么现在在农村建房子越来越难了?这里有一些最近的新闻
湖南:8月5日,据了解,湖北省自然资源厅紧急下发通知,要求农村建房实行“六个统一”。
新滥占耕地建房应当实行“零容忍”。
非法占用永久性基本农田建房的,应当依法拆除。
出售、转让耕地的违法房屋,将实行“双重处罚”。
以各种借口非法占用耕地建房的,按非法占用土地处理。
国家公职人员参与非法占用耕地建房的,应当移送纪委监察。
海南:海南严格执行农村每栋建筑上报机制
为有效遏制农村非法占用耕地现象,确保农村村民建房用地的合理使用,海南省自然资源和规划厅、省农业和农村事务厅近日联合下发通知,要求加强规划控制,加强土地使用保障,落实农村每栋房屋举报机制,实现非法占用耕地建房“早发现、早制止、严查处”。
龙腾南阳讯8月11日,万城区自然资源局根据自然资源部、农业和农村事务部联合下发的《0x9A8B》中规定的“八不准”要求和河南省农村宅基地整治办公室的文件要求,迅速召开会议进行部署,投入了大量人力物力,落实中央、省、市有关文件精神,坚决遏制农村宅基地问题
……
基础原始细节草图




正面效果图



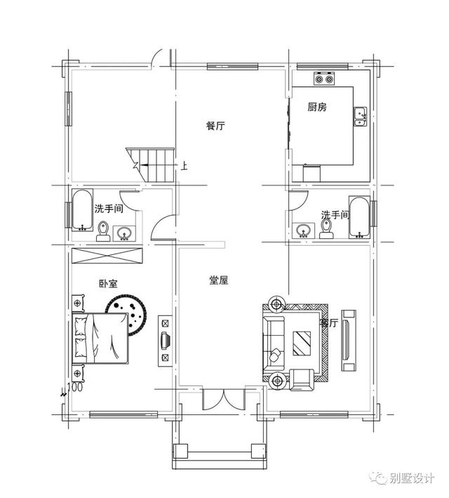
一楼的功能设计:我是厨房。浴室、客厅、楼梯、餐厅、主房间和客厅相连
二楼的功能设计:楼梯、客厅、两间卧室、舒适、浴室和阳台
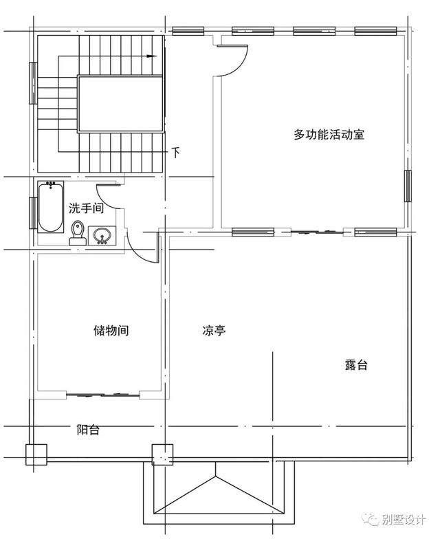
三层功能设计:楼梯、娱乐室、储藏室、大露台和浴室
转载请注明出自轩鼎别墅设计="://lemeizhai.com" target="_self">://www.lemeizhai.com