25x40米,="://lemeizhai.com" target="_self">两层中式庭院别墅,庭院中有走廊环绕,有相称的水景和多个庭院
房屋参数:
占地面积:25x40
建筑面积:555平方米
总建筑面积:785平方米
建筑层数:3层
空白成本:9-100万
室内:3个房间和5个大厅,2个厨房,2个餐厅,1个车库和多个庭院
鸟瞰图


房子的风格是千变万化的,大的也好,小的也好,所以建造一个符合你自己要求的房子是最合适的。住在院子里,感受生活带来的舒适。
大门

项目用地呈长方形且宽阔,房屋呈封闭式布局。不同功能区独立设置,通过走廊串联,既保证了空间的舒适性,又相互独立。分成不同大小的院子,有不同的世界。
侧面


在农村盖房子,接待亲戚朋友,由父母为老人生活更悠闲和自由,当他们有空的时候,在院子里赏花看月亮,当他们忙的时候,写生活。生活是缓慢而悠闲的,不与花竞争,不与春风分离。
平面图:


一层平面
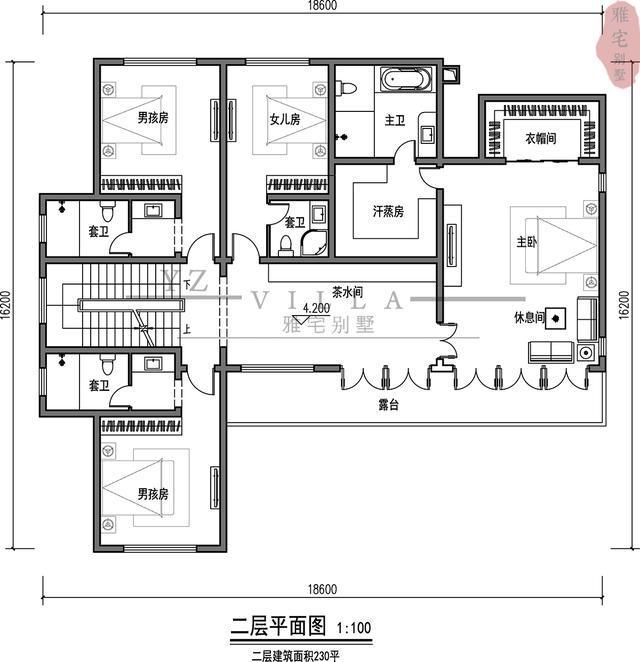
二楼平面
房子占地面积很大,根据使用功能分为两个功能区:游客区和住宅区。辅助建筑用来接待游客。它有一个大的接待餐厅和厨房,以及一个独立的接待室。当假期有很多朋友在家的时候,使用起来会很方便。主楼是供家庭使用的空间。一楼为日常活动用房,有小厨房和客厅,老人房朝南,有独立卫生间,二楼主要为套房。
转载请注明出自轩鼎别墅设计="://lemeizhai.com" target="_self">://www.lemeizhai.com