120平方米的="://lemeizhai.com" target="_self">农村三层楼房设计,建造了20万个主体,邻居们纷纷效仿

近年来,许多人选择在农村地区建造房屋,不仅是那些原来住在农村地区的人,而且住在城市多年的城市人也选择在农村地区建造房屋来实现他们的田园梦想。事实上,这很容易理解。众所周知,城市商品房的价格正在上涨,在一、二线城市甚至达到1000万元,这是普通家庭难以承受的。在农村地区,只有几十万人可以拥有带院子的别墅,其性价比是可以想象的。
边肖今天向你推荐的是一幅经济型三层别墅设计图。每层都有一个露台,既舒适又舒适。


这个位于农村地区的三层120平方米房屋的设计图和效果图占地面积为123.50平方米,建筑面积为319.10平方米。现代风格的设计稳定而大气,二楼和三楼有大型室外露台,实用、美观、开放。
建筑面积:宽10.5,深13.2
主体结构:砖混结构
层数:地上三层
建筑高度:13米
别墅正面平视外观
一楼平面图预览




一楼占地123.5平方米。设计功能:2间卧室,公共安全,客厅,门厅,门廊,餐厅和过道
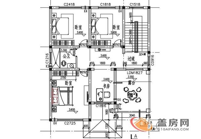
二层平面图预览
二楼占地面积107.1平方米。设计功能:3间卧室,书房,公共卫生,过道和露台
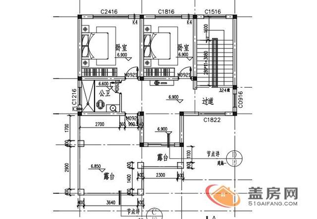
三层平面预览
三层楼建筑面积为88.5平方米。设计功能:2间卧室,公共浴室,过道和阳台
建筑立面预览
转载请注明出自轩鼎别墅设计="://lemeizhai.com" target="_self">://www.lemeizhai.com