别墅设计:为了给父母建造一座="://lemeizhai.com" target="_self">精致的三层别墅,村民们投以羡慕的目光

“孝在一切美德中是第一位的”。当父母到了可以享受幸福的年龄时,他们应该坐在家里过幸福的生活。为乡下的父母造一栋合适的别墅,陪伴他们,照顾好他们,让他们安心度过余生。
这座建筑是欧洲风格的。立面以淡黄色为主,配合文化石的铺设,使建筑不那么单调,更具艺术性。


经典的人字形屋顶入口和方柱温馨优雅,散发出家的气息。屋顶线条均匀,层次分明。
混凝土栏杆坚固实用。没有必要担心风雨造成的损失。它外形稳定,后期维护简便。

小后门进出更方便,延伸的玻璃城堡更适合整栋建筑,为内部创造更大的空间。
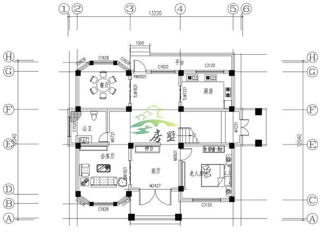
一楼平面



公寓类型分布紧凑有序,空间利用合理。前台的位置是为了满足父母的需要。老人房为父母不便的腿脚提供了很大的帮助,非常贴心。前后客厅和餐厅的全景窗设计让您在透明明亮的房间里享受生活。
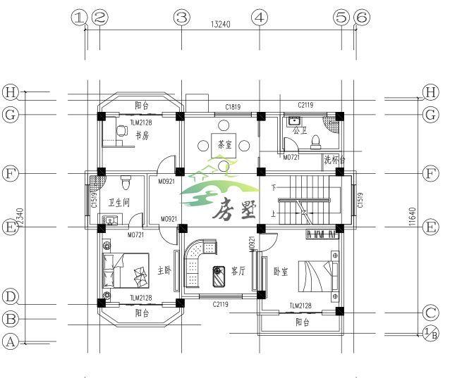
二楼平面
书房与阳台相通,照亮整个房间,营造阅读氛围。主卧室和阳台融为一体,清晨的第一缕阳光将你唤醒。盥洗台独立于浴室,干湿环境分开,以保持地板干燥和清洁,使日常护理更容易。
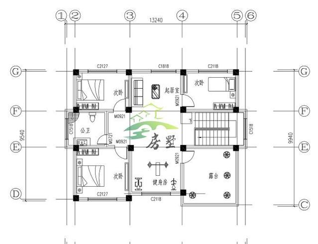
三楼平面
健康是革命的资本。每天坚持半小时的锻炼可以增强我们的体质,有益于我们的身心健康。阳台上有一张休闲桌。闲暇时,请朋友过来,坐下来喝茶,聊天,欣赏周围的美景。
造一栋这样的别墅,一起经营一个家,好好照顾你的父母!
转载请注明出自轩鼎别墅设计="://lemeizhai.com" target="_self">://www.lemeizhai.com