占地面积145平方米13.6X10米二层的小别墅,建筑面积270平方米带的大露台

占地面积145平方米13.6X10米2层的小别墅,建筑面积270平方米带的大露台


我小时候很向往山外,山的那边是什么? 我那时经常那么想。 看见太阳从那个地方升起来,那个地方照射出闪闪发光的光。 雨后的雾可能复盖了那个地方。 或者傍晚鸡鸭进笼,工作的人们还没回家,一切都安静下来,不管山那边是不是还很热闹,我想那是个美丽的地方。 是我从未见过的世界。 我每天爬上一座不知从庭院哪里来的石砖山,踩着,努力伸长脖子,这样我的眼睛就能掠过前面的山顶,能看到那个让我非常神往的地方! 但是最后什么也看不见的——没能通过到眼前的山顶。

长大后到了这个无限憧憬的大城市,又怀念小时候的生活,总有一天我想积攒足够的钱,带着一家老人,回到从小长大的地方。



现在,回到农村建一栋,做院子,种蔬菜种花,看院子里的花落,走在闲庭里变得奢侈了
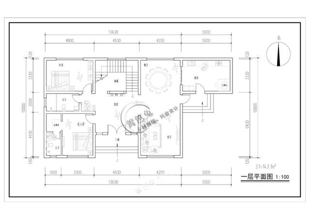
一层平面布局

一楼修订:柴房单独修订为本体外和本体一起,方便动作清晰,平时老人在家有时亲戚走一两天,和父母闲聊聊天,一楼修订的两间卧室更令人满意,还有客厅、餐厅、堂堂,农村
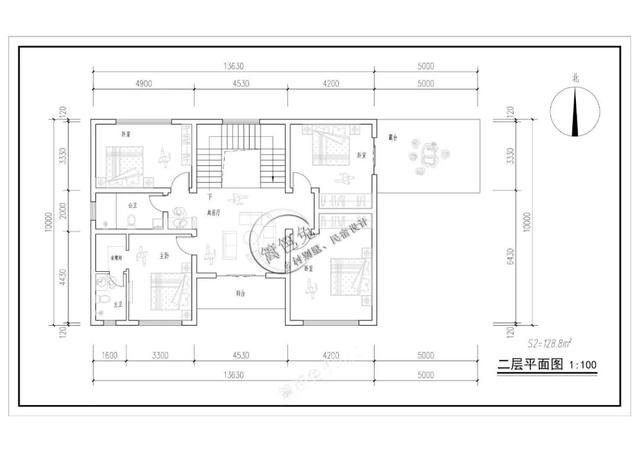
二楼房间功能布局图

二楼一共有四间卧室,平时几乎没人住。 家里的两兄弟每年回来两三次偶尔留宿。 主要集中时间是春节的时候一个孩子和两个兄弟一家两个孩子和大人正好可以满足。
转载请注明出自轩鼎别墅设计="://lemeizhai.com" target="_self">://www.lemeizhai.com