农村别墅设计:二楼半现代式别墅,好评度高,时尚简单易看

很多朋友冲我,现在的现代风格别墅设计的效果图很漂亮,但是真的施工,做得不好。 施工师没有那样的技术,无法复原图纸。

小编想过了,确实是这样。 讲究现代风格的是天马行空,简单的线条组合,做出非常简单的味道。 但是,这些不简单的线的组合,施工的难易度很高。
今天小编特意选择施工非常简单的案例与大家共享,希望大家喜欢。
建筑信息
开间: 18米
深度: 10米
建筑面积: 380平方米
建筑结构:框架结构
建筑风格:现代风格
建筑整体信息是现代风格,外立面大面积采用纯白色真石漆,外观漂亮简洁,屋檐角线采用黑色涂料,组合非常漂亮。


建筑形状丰富,看起来线条多,仔细一看,建筑没有困难,没有弧,没有尖塔,都是简单的直线,可以看出这个建筑施工得很好。

室外阳台露台面积足够,可以在楼上好好享受室外阳光的空气。

建筑物的背立面窗户多,基本上与南北呼应,实现了透明的感觉。
看看平面布局的效果吧

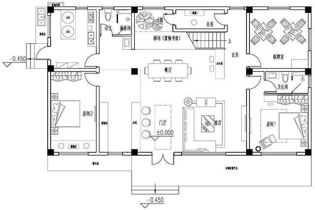
一楼的平面布局:一楼利用了两间卧室、一间棋牌室、一家厨房餐厅、一个基础厨房、楼梯下面的空间,做了备用空间。

二楼平面布局:二楼有五间卧室、一间起居室、一个室外露台。 这么多卧室在农村很受欢迎。

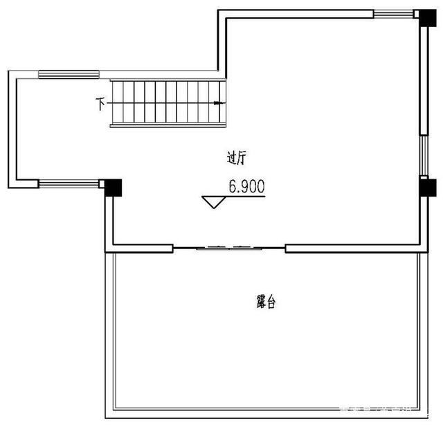
3楼的平面布局: 3楼作为备用空间,屋顶上只有一个雨棚,里面的空间可以用来收纳谷物等。
转载请注明出自轩鼎别墅设计="://lemeizhai.com" target="_self">://www.lemeizhai.com