建造简单舒适的农村独栋别墅,度过美好的日落和呼吸、日出生活

金窝的银窝,比不上自己家乡的窝。 回到故乡建造简单舒适的别墅,度过美好的日落和气息、日出的生活。 下一篇共享福建魏先生,回乡修建的实用欧式三层别墅,施工难度小,经济实用,简单宽敞,符合农村建筑标准。
三层欧式大气别墅

魏先生想回乡盖房子,经过多次沟通、修订、修改,最后确定,完成了这三层欧式别墅。
这座欧式别墅,别墅占地面积正,采用红色斜坡屋顶,日积月累,象征着多窗大露台的设计美观大气。


魏先生的宅邸,是通过我们老设计师队倾力修订,经全过程专业施工指导,历时8个月竣工建成的。
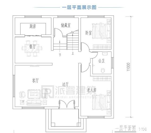
室内平面布局

一楼修订宽敞的大客厅和大厅、复式客厅、高级大气。 右侧设计厨房、餐厅,饮食方便,左侧老人房、卧室、舒适,满足家长居住。

二楼设有起居室、接待室、三间卧室、厕所、露台。 在功能修订方面十分全面,多房设置修订可以全面建筑,满足客户日常生活中的各种使用需求。 朝南的露台可以开阔视野,可以作为展望台使用。

三楼有三间卧室,厕所和大露台,新年节可以招待朋友和家人,大露台可以做晚会的休闲场所。
夏天在这里坐卧,晚上吹风观赏夜景很舒服,到了冬天白天可以享受日光浴,很舒服。
室内装饰设计

整体空间采用平稳的灰色蓝色调作为配色,以白色、淡灰色、中灰色、灰色蓝色为渗色,强调和谐气质的气氛。

同时浪漫的欧式风格得以升华保持,整个空间酝酿出清隈诗意的唯美境界,温柔高雅,无限憧憬。

灰蓝色带有纤细温暖的颜色,带有自己独特的智慧和温柔,给人以更大的想象空间、和平与视觉感。
转载请注明出自轩鼎别墅设计="://lemeizhai.com" target="_self">://www.lemeizhai.com