这几个农村自建房的设计图,非常大气实用,简直是理想的居所!
城市生活,车水马龙,生活节奏快,无呼吸机会,反观乡村生活,宁静,风景优美,空气新鲜。 现在建设了新农村,交通也变得方便,道路连房子的入口都修好了,很多人决定回家乡建房子。 “乡村别墅”暂时受欢迎,乡村别墅越来越多,适合自己,搭建合理实用的房屋非常重要,下一篇小说有几个别墅,非常大气实用,简直是理想的住处。
方案1 :简单大气乡村二楼自建家
房屋概况:这栋别墅第一次看到外观照片就很有魅力,完美地解释了建筑的奢侈,体现了主人的浪漫感。 第一层的设计满足了农村人的日常生活要求,开放客厅的设计扩大了空间,视觉效果更加出众,同时使居室看起来更加透明



情景2 :美丽乡村三层大厦照片大全
房屋概况:户型设计简单美观,采用坡屋顶,是农村常见屋顶类型,三楼露台实用性高,可以晾晒,可以欣赏风景,营造创意屋顶花园,营造充满活力的居住环境。 外墙用淡白色真石漆装饰,四面开窗,室内透明采光,施工难度不大,成本不高,特别适合普通农村家庭建设。




方案3 :包括经济乡村民居设施修订图外观图
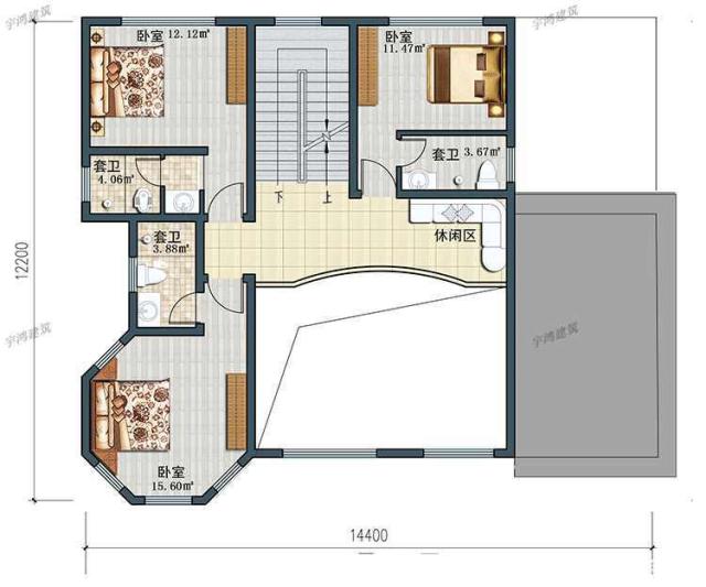
房屋概况:农村人最喜欢的别墅经济适用,成本低且受欢迎的布局好。 二楼是农村建得最多的。 这座别墅采用黄色的真石漆外墙,二楼大露台不仅可以欣赏风景,还可以增加室内采光,户型经典、布局合理。



转载请注明出自轩鼎别墅设计="://lemeizhai.com" target="_self">://www.lemeizhai.com