三层别墅设计施工图纸开间10.8米,进深12.3米,一层面积135.8平方米建筑面积358

项目地址在广东省湛江
地基尺寸
开间: 10.8米
深度: 12.3米
一楼面积: 135.8平方米
建筑面积: 358平方米
结构类型:框架结构
现在为什么越来越多的人在农村建自己的别墅呢?

为什么现在农村盖房子越来越难? 以下是最近的一些新闻


湖南省: 8月5日,湖北省自然资源厅发出紧急通知,对农村滥占耕地建房实行“六个一律”。
新乱占耕地建房的行为,一律实行“零容忍”。
非法占用永久基本农田建造房屋,一律依法拆除。
买卖、耕地流动违法盖房,一律实行“双重处罚”。
巧立名目非法占用耕地盖房子,一律以非法占地处理。
国家公务员参与非法占用耕地建房,一律移送纪委监委。
海南:海南严格执行农村建设的一切建设必报机制
为了有效控制农村建设混乱,保障农村村民住房建设的合理用地,根据国家统一配置,海南省自然资源和规划厅、省农业农村厅前几天共同发出通知,加强规划管理,加强用地保障,实行农村建设的一切建设必报机制,搞乱耕地建设行为。
龙腾南阳根据8月11日自然资源部、农业农村部联合发布的《关于农村乱占耕地建房“八不准”的通知》中规定的“八不许可”要求和河南省农村乱占耕地建设问题整备《关于印发的通知》的文件要求,正好城区自然资源局迅速召开会议安排部署,投入巨大的人力、物资
……

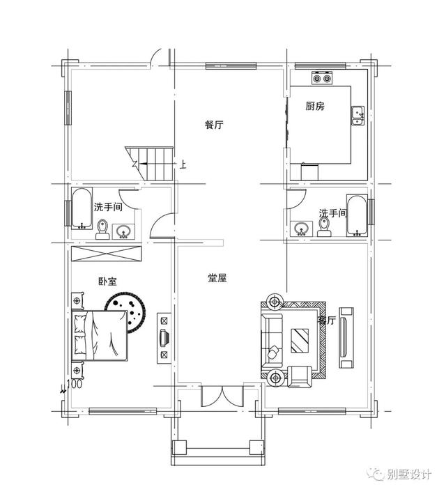
1楼功能设定修订:我是厨房。 厕所、客厅、楼梯、餐厅、堂堂和客厅相连
二楼功能设置修订:楼梯、客厅、两间卧室、舒适、厕所、阳台

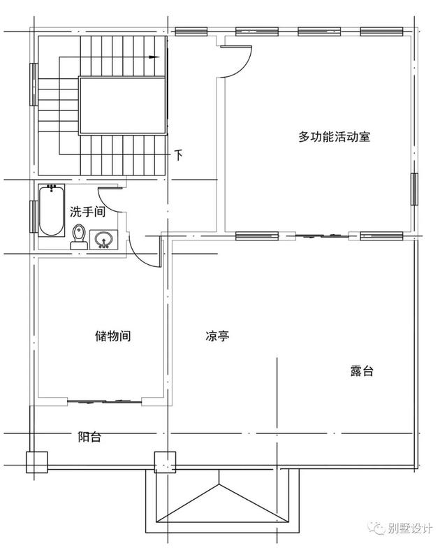
三楼功能设置修订:楼梯、娱乐室、储藏室、大露台、厕所

如果你喜欢这篇文章,谢谢你的注意和支持,看到你和你的朋友分享圈子
id :双星
分享最先进的设计,传达想法和感情的设计,
享受有品位的生活美学、有格调的生活。
在这里,看到你的美学,遇见你的生活!
转载请注明出自轩鼎别墅设计="://lemeizhai.com" target="_self">://www.lemeizhai.com