别墅设计:农村自建房以房型为优先,大型天台复古典雅只不过是新中国式
建筑参数的成本
占地面积: 152.1平方米
建筑面积: 277.8平方米
建筑结构:砖混结构
估计成本: 35万
注:不同地区的材料成本、地基差异、人工费、运输成本等因素的不同,本体成本也不同。
02
外观效果图

点击以显示放大图
镜像图

多角度演示文稿

多角度演示文稿

多角度演示文稿

夏天有夏天的景色,冬天有冬天的景色,四季不同,景色也不同,不过,这个新中国式总是在四季的变化中找到最适合自己的风格,巧妙地融入自然中。 地势高,室外平台面积大,活动空间大,观赏大型天台,实时观赏不同外景,晾晒衣物,也是家庭用餐的最佳场所。
03
内部结构图

别墅的一楼有客厅、餐厅、厨房、三间卧室、两个厕所和杂物之间。
入门是客厅,表现主家的热情款待,客厅上空悬空,立体空间感充足,采光透光,明亮温暖。 厨房和餐厅一体化的设计,摆脱了厨师分离的麻烦,便于家人的饮食。 主卧有独卫,面积大,二次卧由一位客卫分隔,不仅在距离上便于居民,也便于清扫。

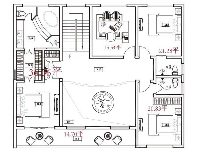
别墅的二楼有三间卧室、三间厕所、书房、衣帽间和阳台。
二楼主要的卧铺有独卫、食品房和阳台。 衣帽间不仅收纳全家人的衣服,也是换衣间,早上起床,在阳台呼吸新鲜空气,喝茶,美哉。 另外两个二次卧铺可以用作孩子的房间,孩子不再共用另一间卧室,有独立的空间,有利于他们的健康成长。
转载请注明出自轩鼎别墅设计="://lemeizhai.com" target="_self">://www.lemeizhai.com