农村别墅设计:小宅基地应该怎么盖别墅? 是的。 今天TA来了
客人经常问,如果房子是小宅地怎么办? 家庭人口多怎么办? 建什么样的房子比较合适? 所以,今天TA来了! 为小宅地精心挑选的4层一幢欧式小别墅,大气与优雅共存,质感气息弥漫
01
建筑参数的成本
开间: 8.5米
深度: 11.4米
占地面积: 93.4平方米
建筑面积: 373.6平方米
建筑结构:砖混结构
估计成本: 45万
注:不同地区的材料成本、地基差异、人工费、运输成本等因素的不同,本体成本也不同。
02
外观效果图

点击以显示放大图

镜像图

多角度演示文稿

多角度演示文稿

多角度演示文稿
带上花园,早晨练习冬暖是个好地方,为家人提供户外安全的活动空间。 一楼和二楼的外立面采用统一的复古炼瓦面,三楼和四楼的外立面是现在非常流行的刷面涂料,二楼之间也有炼瓦雕刻装饰,从四楼的阳台到一楼的平台,从上到下是大气的质感。
03
内部结构图




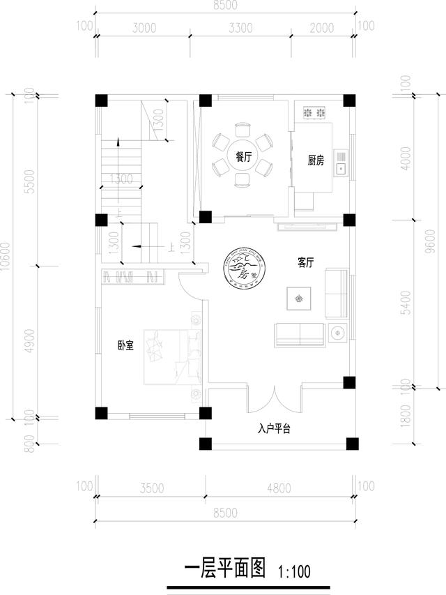
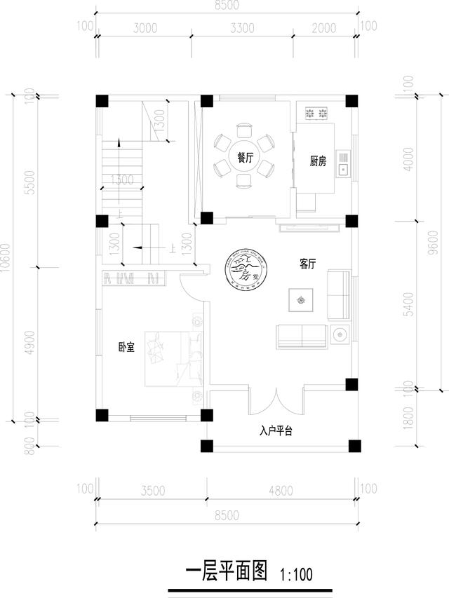
别墅的一楼有客厅、餐厅、厨房、卧室。
一楼房的功能设置修订满足了基本大厅楼层的需要,入门在客厅,宽敞明亮,也不拥挤招待客人。 料理的修订满足了家庭日常饮食的需要,一楼的卧室可以作为老人的房间使用。
别墅的二楼有客厅、两间卧室、两间厕所和阳台。
主卧有独卫,另一个厕所与次卧相连但不相连。 保证居民的便利,也为其他家庭提供应急需求的便利。 客厅与阳台相连,采光很好,房间里阳光充足,显得很暖和。
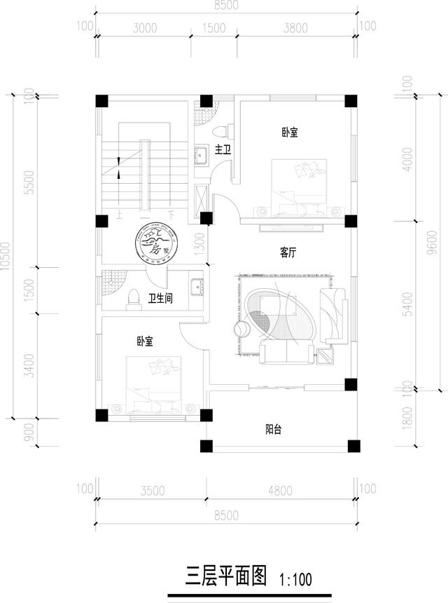
别墅的三楼有客厅、两间卧室、两间厕所和阳台。
三层楼房的布局和二层一样,充分考虑了小宅基地的特殊性,满足了家庭的居住需要。
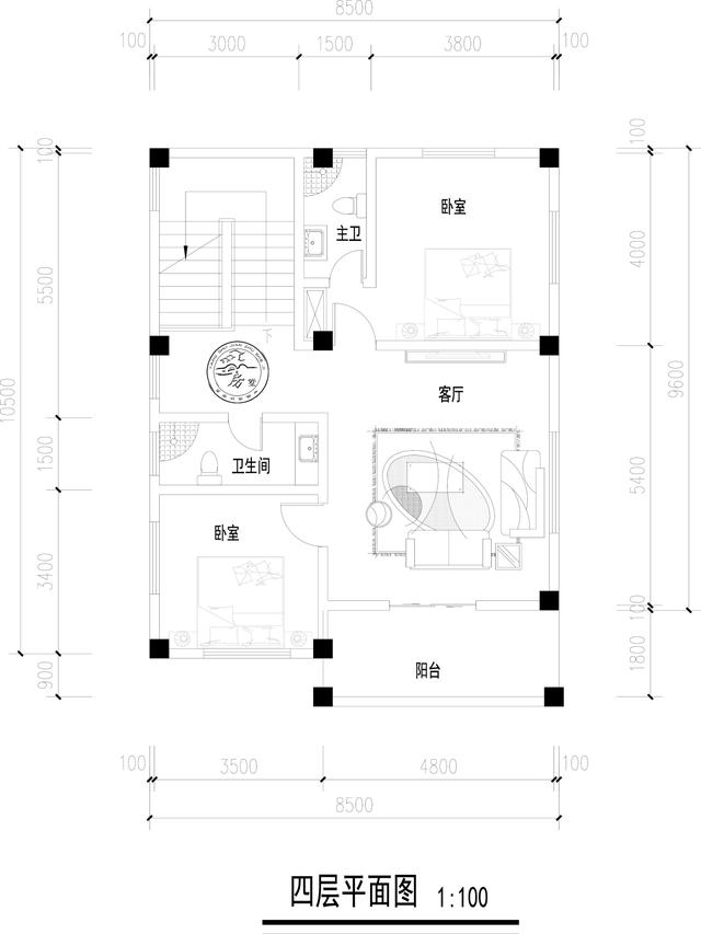
别墅的四楼有客厅、两间卧室、两间厕所和阳台。
4层的房屋内部配置和2层的3层一样,这样的话不会导致小宅基地占地面积受到限制的尴尬状况。 同时,4楼平面海拔高,阳台休闲观光可以看到美丽的景色。
转载请注明出自轩鼎别墅设计="://lemeizhai.com" target="_self">://www.lemeizhai.com