您好,欢迎访问轩鼎房屋图纸网,轩鼎建筑为您提供新农村房屋设计图、别墅设计图纸以及别墅定制设计与咨询服务。
 
 
  热门搜索:自建房 别墅设计 房屋设计图   
网站首页 图纸大全 定制设计 作品展示 建房图文 联系我们
一层房屋图纸
二层房屋图纸
三层房屋图纸
四层以上图纸
双拼房屋图纸
其他建筑图纸
 
 
 您的位置:首页 ->> 建房图文 ->> 传统的农村别墅设计图!
 
 

传统的农村别墅设计图!

发布时间:2020/9/22 21:09:03 点击数: 2530次 

        传统的农村别墅设计图。

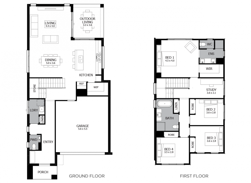
        打包一个传统的家庭住宅的所有冲力,掌声26不仅滴答所有的盒子,但在9米宽,它也适合许多内城狭窄的地段!你会喜欢这个紧凑的家让光线,并给你足够的空间,让你的家唱歌的风格,个性和才华。楼下是致力于社交家庭空间,一个大型美食厨房俯瞰一个开放的区域,无缝地流动到广阔的户外生活。楼上有四间卧室,有一间独立的书房和两间浴室。

农村别墅设计图

农村别墅设计图

转载请注明出自轩鼎别墅设计="://lemeizhai.com" target="_self">://www.lemeizhai.com

 
· 复式楼房有什么特点(复式楼有哪...
· 气派四层别墅房,占地面积108平...
· 木蜡油对身体健康有什么危害?(...
· 好的建筑离不开好的设计师,想要...
· 2023夏季装修注意事项有哪些(夏...
· 卫生间装排气扇有哪些优缺点(卫...
· 十套经济实用的别墅建筑方案,第...
· 小进深三层别墅,小进深也能是豪...
  关于我们 网站事务 帮助中心
客服热线:400-079-6579
客服QQ:10928711 10928755 10928799
地址:山东省潍坊财富大厦1801
 

预定须知
顾客必读
配送方式

 


Copyright 2016 www.lemeizhai.com All Rights Reserved ICP备案序号:鲁ICP备2026012448号-1
轩鼎房屋图纸 电 话:0536-3385581 3385582 传 真:0536-3385581 地 址:山东省潍坊财富大厦1801


keywords:房屋设计图 房屋设计图 农村房屋设计图 农村房屋设计图 建房图文