别墅不是城市独有的。在农村,我们都是独栋。以前只是没有经济条件和意识。所有的房子都是传统的公寓式的,没有什么特色。现在我们有了这个条件,大家都想把自己的房子弄得好看一点。现在是盖房子的好时机。我想建一栋公寓布局好,外观漂亮的别墅。在农村盖新房是一件值得骄傲的事,更何况是洋气的="://www.lemeizhai.com/Channel.asp?ChannelID=33" target="_blank">农村别墅。房子好看不好看,往往是一个互相比较竞争的地方。如果两个房子隔着一条小马路,不能太差。






青瓦白墙的外观,红色的窗框,给人很强的年代感,这款四合院带地下室,多件可以改卧室的房间,不用担心不够住,一家人住这样的房子真是其乐融融。




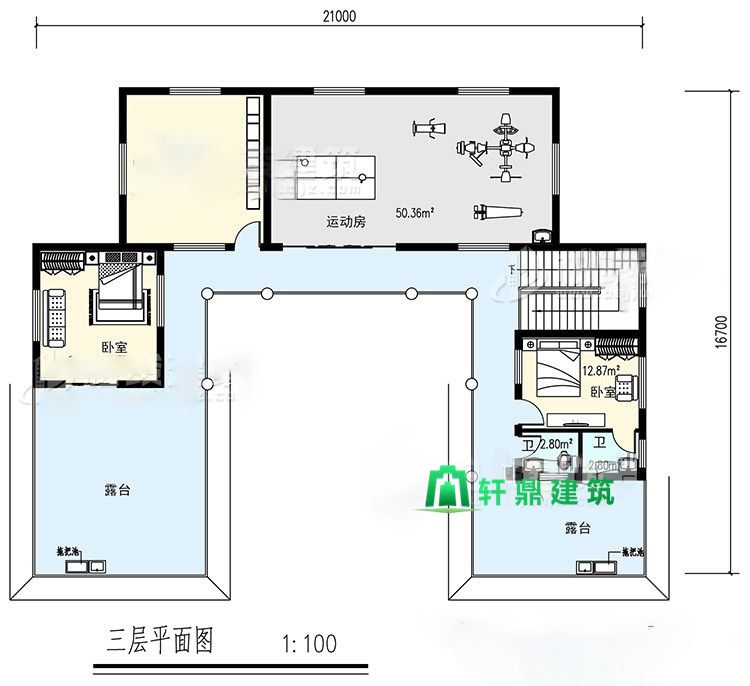
这款设计是三层得四合院,设计非常有新意,没算实用,内部设计非常齐全,有钱之后回老家建一栋这样的房子享受人生,是再好不过的事情。
根据自己的喜好及需求来设计,在地方政策允许的情况下,想要什么样的户型就建什么户型,盖起来的房子住在里面也舒适多了。
转载请注明出自轩鼎别墅设计="://www.lemeizhai.com" _src="://www.lemeizhai.com">://www.lemeizhai.com