在外奋斗多年,你是否厌倦了城市的灯红酒绿、喧嚣纷杂,某一瞬间有一种逃离浮华的冲动?一直以来,回归心灵的宁静一直是很多向往已久的生活状态,为了找寻自己儿时记忆中纯天然果蔬的味道,为了让孩子们能够体会拥抱大自然的乐趣,为了让年迈的父母享受安逸的老年生活,回农村老家盖一栋属于自己的乡间小屋自然成了一件提上日程的事情。
1.
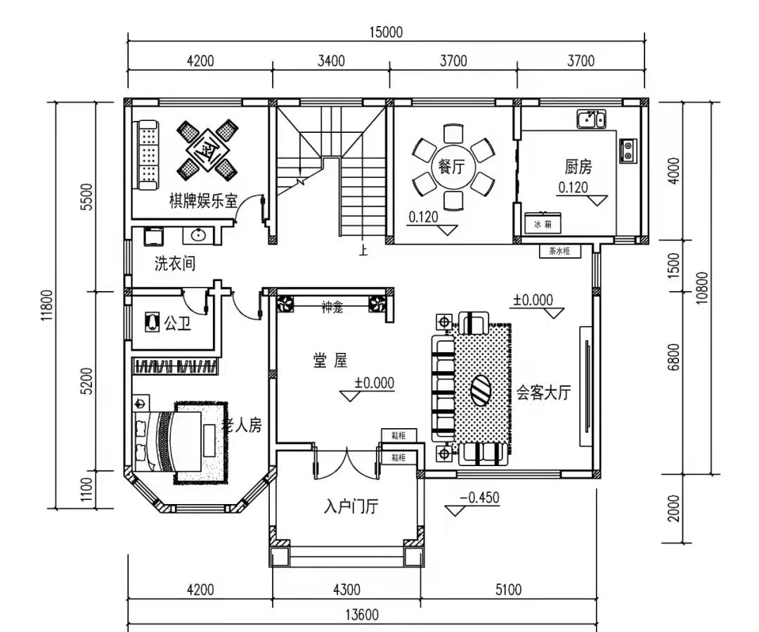
建筑参数:
占地尺寸:15米×11.8米
占地面积:164平方米
建筑面积:342平方米
建筑结构:砖混结构
层数:2层


一层设入户门厅、堂屋、会客大厅、厨房、餐厅、棋牌室、洗衣间、卫生间、老人房。厚重大气的入户门厅,彰显主人格局,入户堂屋与客厅连为一体,空间阔绰,举手投足之间尽显大气,堂屋以装饰隔断其他区域,方正大气又庄重。
二层设4卧室、2卫生间、衣帽间、露台。主人房带独立卫生间和衣帽间,面积非常大,生活配套设施齐全,舒适性能大大提升,大露台独立设计,可供休闲晾晒,可作为阳光房,当然,你也可以隔出一间卧室或者书房来,也是可以的。
转载请注明出自轩鼎别墅设计 ://www.lemeizhai.com/index.asp