占地面积·164平方米最适合在农村建造的别墅,这两款田园别墅在二层小别墅中,可以说得上是精品了,时尚又有设计感的外观,大气的质感,再加上层次分明的造型,协调的色调搭配,非常耐看有很多亮眼的地方。主体造价非常亲民只有36万左右。

建筑参数:
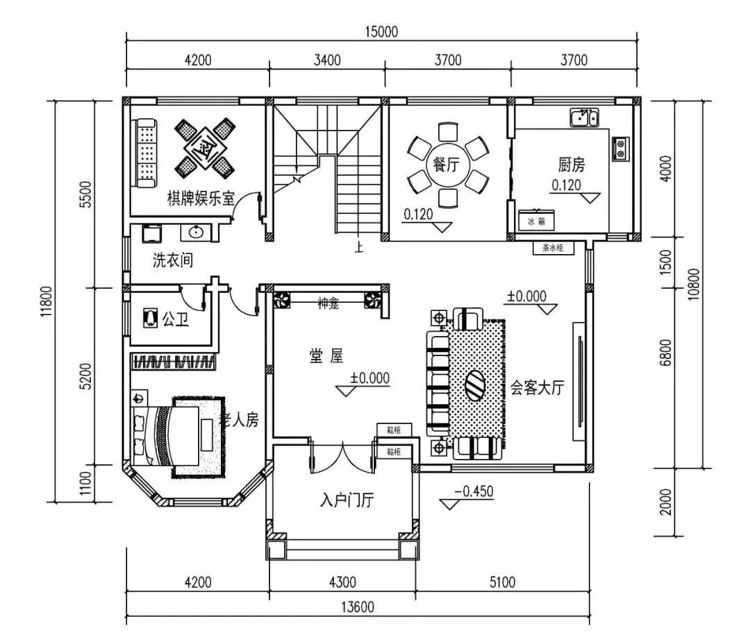
占地尺寸:15米×11.8米
占地面积:164平方米
建筑面积:="://www.lemeizhai.com/PictureShow.asp?PicID=1299&PicClassID=88" target="_self">342平方米
建筑结构:砖混结构
层数:2层
主体预算:36万

一层平面图上,玄关两边分别是客厅和老人房,都是向阳的,屋内很亮堂,老人房还带有内部卫生间,很方便。

二层平面图上,我们看到是三个卧室,如果家里人多,将娱乐室改成卧室也可以。
2.


一层设入户门厅、堂屋、会客大厅、厨房、餐厅、棋牌室、洗衣间、卫生间、老人房。

二层设4卧室、2卫生间、衣帽间、露台。
转载请注明出自轩鼎别墅设计:="://www.lemeizhai.com/index.asp" target="_self" style="color: rgb(255, 51, 0); text-decoration-line: none; font-size: 13px; font-family: 宋体; white-space: normal; background-color: rgb(255, 255, 255);">://www.lemeizhai.com/index.asp