回农村建房,对很多朋友来讲,都是一生一次的大事。既想建的美观大气,同时又居住舒适,不留遗憾。而且在农村,房子也相当于第二张脸,一套好房子能让自己长脸。今天这款欧式="://www.lemeizhai.com/Picture.asp?PicClassID=88" target="_self">二层别墅推荐给大家,白墙灰瓦小露台,特别有气质。
效果图:

图纸信息
开间进深:11.84X12.02米
占地面积:141.6平方米
建筑面积:283.2平方米
建筑结构:砖混结构
预估造价:36万
效果图:


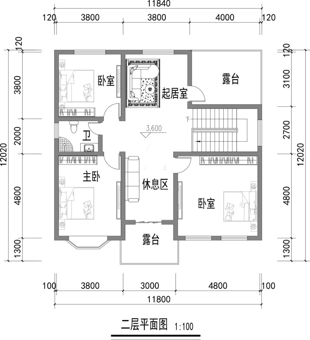
室内布局:

别墅一层设有玄关,客厅,餐厅,厨房,两个卧室,卫生间。

别墅二层设有起居室,休息区,三个卧室,卫生间,两个露台。
转载请注明出自轩鼎别墅设计:://www.lemeizhai.com/index.asp