随着时代不断发展,="://www.lemeizhai.com/index.asp" target="_self">别墅设计的风格日渐增多,是不是选得有点目不暇接了?但总有一栋房子,让人看一眼就爱上。正如今天这款客户定制的现代风别墅,时尚简约,清爽自然百看不厌,建栋在村里,引领乡村新潮流。
效果图:

基本信息:
占地尺寸:12.3m×13.5m
结构形式:砖混结构
房屋构造:7室3厅9卫
建筑面积:约454平
占地面积:约158平
施工面积:约505平


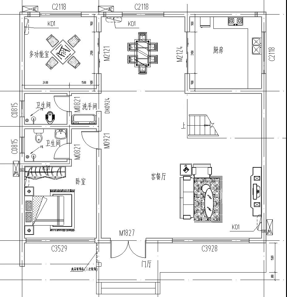
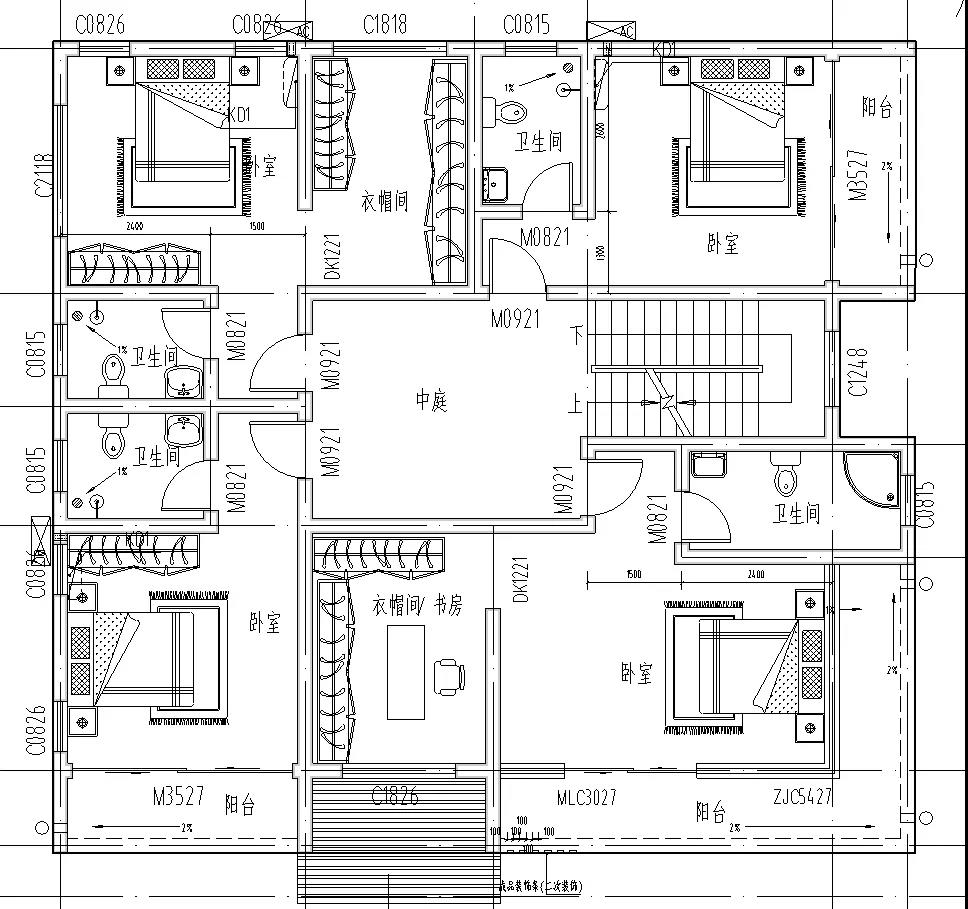
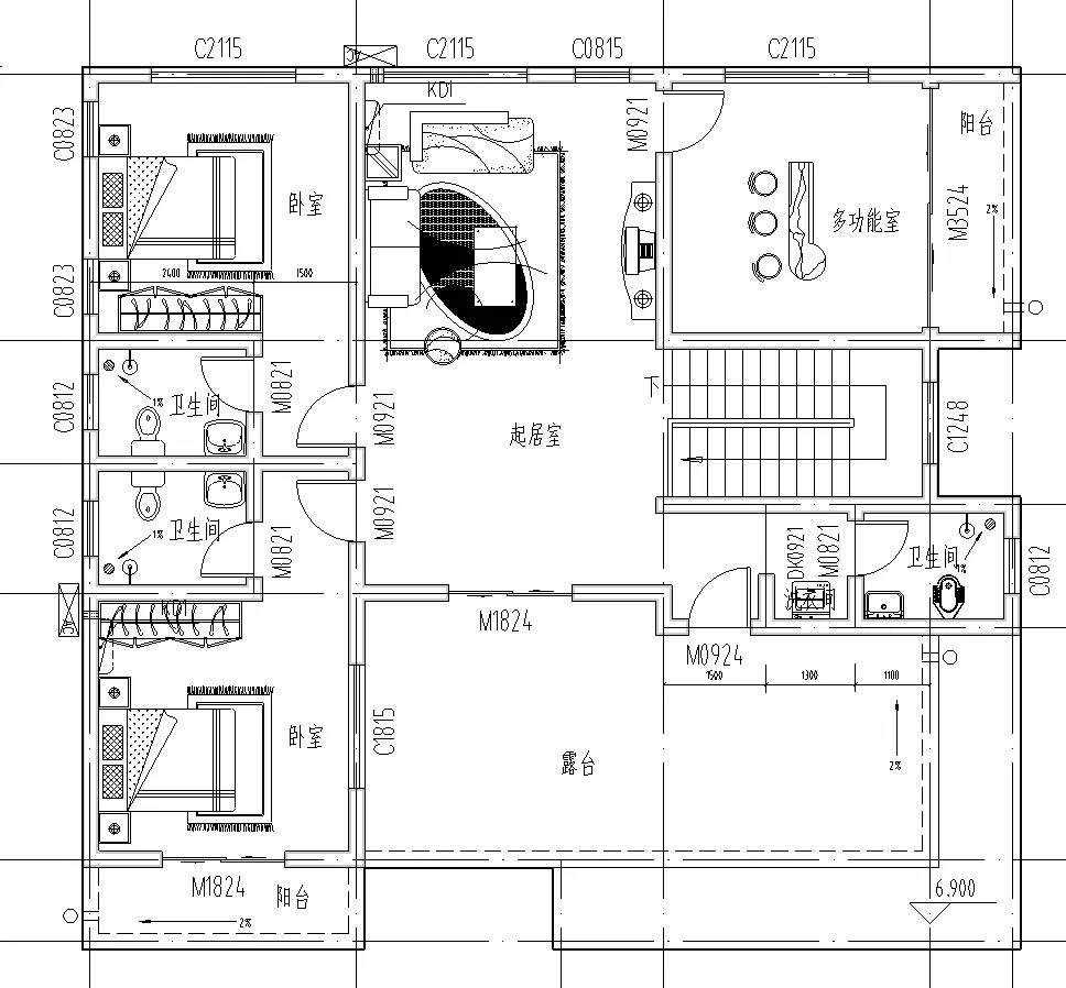
布局图:

一楼:客厅,卫生间,厨房,餐厅,卧室

二层:卧室4,卫生间4,阳台2,中庭

三层:卧室2,卫生间3,露台,阳台,起居室
转载请注明出自轩鼎别墅设计:www.lemeizhai.com