喜不喜欢那种一览众山小的感觉?很多人有空的时候,就喜欢约上三俩好友去登高望远,对着远处眺望不仅能够名目,整个人的身心都会得到解放一般,效果非常的显著,如果能在老家建一栋既漂亮、楼层又高的别墅,也能在顶层领略到这种感觉,且每天都可以。今天这款四层别墅推荐给大家,这是一款有电梯的="://www.lemeizhai.com/Picture.asp?PicClassID=94" target="_self">农村别墅设计,现代风格,灰白相间非常漂亮
效果图:



基本信息:
开间:12米
进深:11米
占地面积:132平方米
建筑面积:450平方米
建筑层数:四层
结构类型:砖混结构
主体造价:72万左右
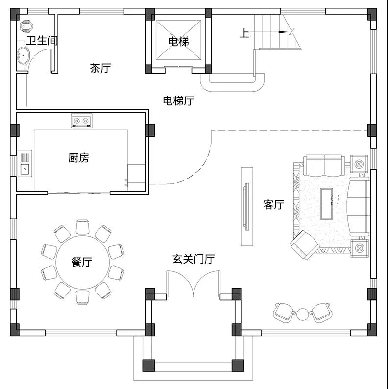
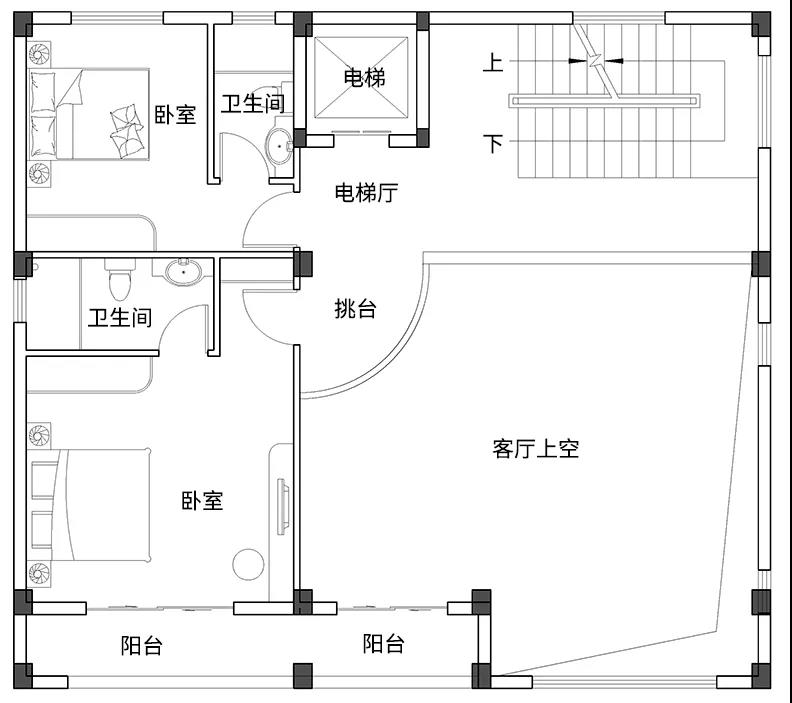
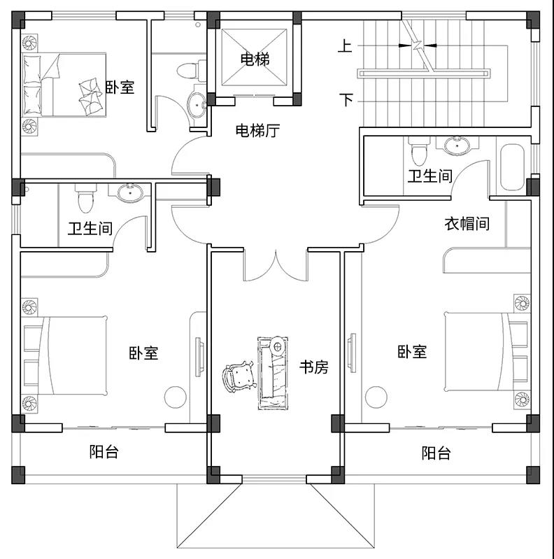
室内布局:

一层布局:客厅、餐厅、厨房、茶厅、卫生间

二层布局:阳台、卧室(2)、卫生间(2)

三层布局:书房、阳台、卧室(3)、卫生间(3)、衣帽间

四层布局:露台、卧室(2)、卫生间(2)、衣帽间、书房、阳台
转载请注明出自轩鼎别墅设计:://www.lemeizhai.com/index.asp