农村盖房子花样繁多,抛去常用的一些砖混结构或者框架结构,剩下就是风格展示了;像广东福建等沿海城市,那的农村房精致大气,而且一点都不过时,效果特别好。就像今天这款二层现代="://www.lemeizhai.com/Picture.asp?PicClassID=88" target="_self">别墅设计一样,建一栋30年不过时!从整体造型上看,设计师构造丰富,造型立体感强,再配上庭院绝对不错。

基本信息:
开间:18.55米
进深:12.5米
占地面积:131平方米
建筑面积:223平方米
结构类型:砖混结构
预估造价 : 30万元

室内布局:

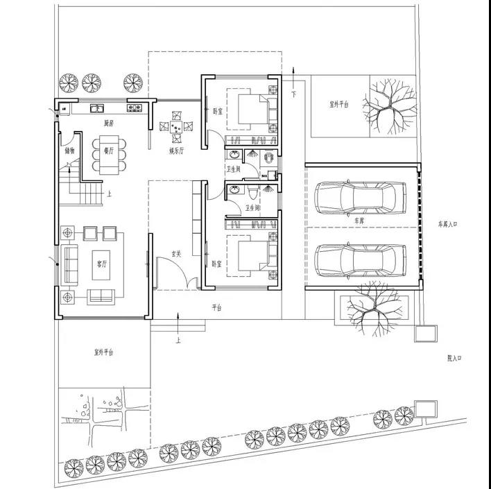
别墅一层设有玄关,客厅,餐厅,厨房,储物间,娱乐厅,两个卧室,两个卫生间,车库。

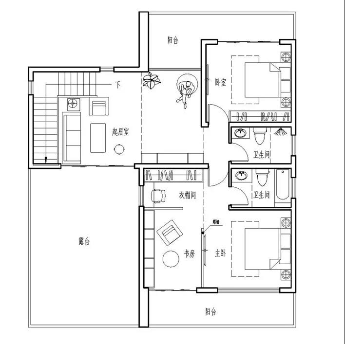
别墅二层设有起居室,两个卧室,书房,衣帽间,两个卫生间,两个阳台,露台。
转载请注明出自轩鼎别墅设计:://www.lemeizhai.com/index.asp