在这个浮躁的时代里,何不妨建一栋别墅,闲暇独处时,身畔鸟语花香,临窗而坐,读一本书、煮一壶茶,抚一首曲,欣赏着窗外的绿意盎然,乐享优雅时光,浮生偷闲一日。这款="://www.lemeizhai.com/Picture.asp?PicClassID=88" target="_self">二层别墅设计,经典的院落住宅,形成一个极为私密的居住空间,那一砖一瓦间,淡雅浓厚,自有一派雅韵流淌其中,颜值和实力并存,实力派的你别错过哟!

基本信息:
开间:13.3米
进深:11.7米
占地面积:155平方米
建筑面积:280平方米
建筑层数:两层
建筑结构:砖混结构
主体造价:40万元(仅供参考)


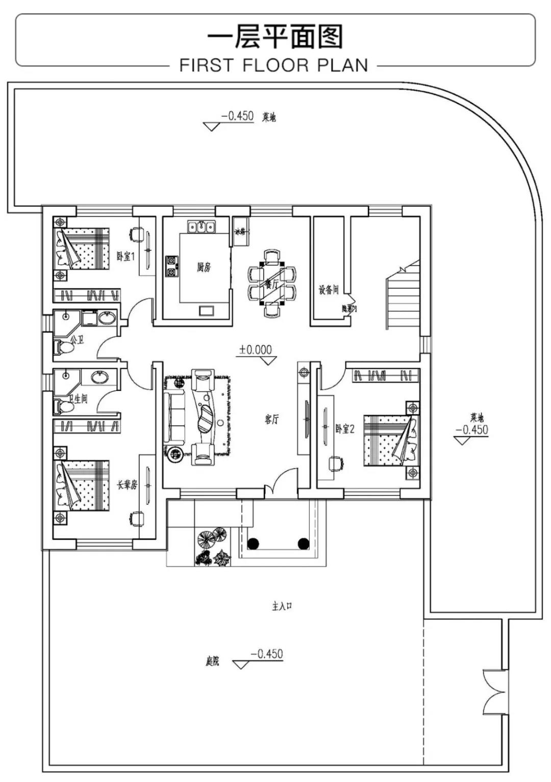
室内布局:

一层:客厅、厨房、餐厅、设备间、卧室、卫生间

二层:起居室、卧室、书房、卫生间、设备间、露台
转载请注明出自轩鼎别墅设计:://www.lemeizhai.com/index.asp