现在农村自建别墅越来越多,样式也有很多,现在主要分为中式风格,欧式风格。其中欧式风格分为很多种,法式、德式、地中海式等等,现在很多设计师集各家所长,并不局限于一种设计风格。所以各种别墅眼花缭乱,独具一格的别墅比比皆是,这也是时代进步的一种表现。下面小编就给大家介绍一款简欧式的农村自建别墅,造型说不上独具一格,但也是非常漂亮大方的一套别墅,供大家鉴赏!
图纸效果:

基本信息:
面宽:14.3米
进深:11.5米
建筑面积:285.0㎡
建筑层数:2层
屋顶形式:坡屋顶
主体造价:43万(参考)
="://www.lemeizhai.com/PictureShow.asp?PicID=1390&PicClassID=91" target="_self">别墅设计价格¥598.00


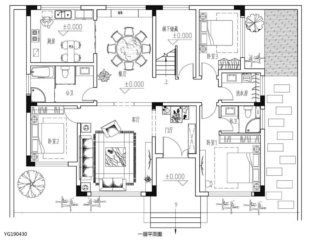
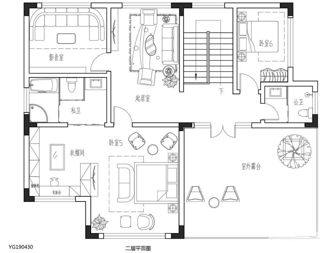
室内布局:

一层建筑室内除了常规的餐厨、客厅空间外,还包括三间卧室

二层的平面布局中,活动空间更加丰富
转载请注明出自轩鼎别墅设计:://www.lemeizhai.com/index.asp