现如今最为流行的设计风格之一,便是集传统与现代于一体的「新中式风格」了。而轻奢风的兴起,也让新中式风格多了一丝时尚、精致的韵味,越来越符合当下年轻人的审美追求。今天这款="://www.lemeizhai.com/Picture.asp?PicClassID=91" target="_self">三层别墅设计推荐给大家希望各位喜欢
图纸效果:

基本信息:
开间:12.5米
进深:9.7米
占地面积:121平方米
建筑面积:273平方米
建筑结构:砖混结构



户型展示图

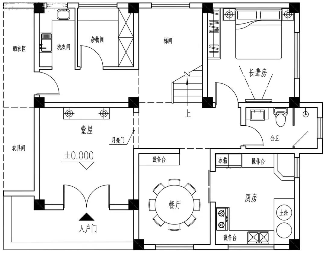
一层布置以公共空间为主,功能分区明确且合理

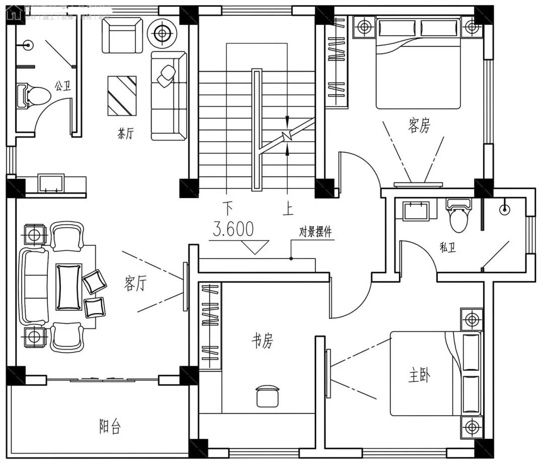
二层空间排布与一层基本保持一致,设计师将功能进行了重设

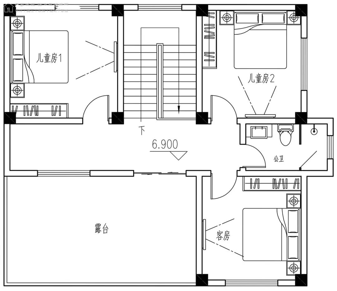
三层主要设置为两间儿童房,搭配的一间客房
转载请注明出自轩鼎别墅设计:://www.lemeizhai.com/index.asp