农村建的房子已不像以前那样“老土”了,几乎家家户户住上了漂亮的别墅,风格各异,让人一看就是经过一番设计的。今天这款客户定制的3层现代风="://www.lemeizhai.com/Picture.asp?PicClassID=91" target="_self">别墅设计,造型凹凸有致,建栋在村里,没人敢说你家房子土。
图纸效果:



基本信息
别墅层数: 三层
别墅风格: 现代
占地面积:115㎡
建筑面积:452.46㎡
预估造价:50.0万
建筑结构:框架结构
建筑占地:11.5m×10m
户型展示图

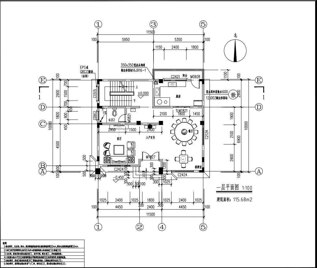
别墅一层设有客厅,餐厅,厨房卫生间。

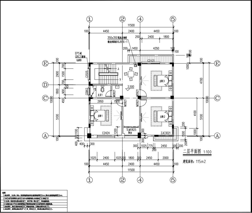
别墅二层左侧设有客厅,三个卧室,卫生间。

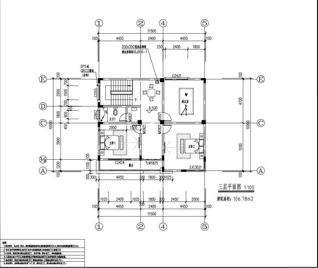
别墅三层设有卧室、娱乐室
转载请注明出自轩鼎别墅设计:://www.lemeizhai.com/index.asp