随着时代不断发展,别墅风格日渐增多,是不是选得有点目不暇接了?但总有一款户型,让人看一眼就爱上。正如今天这款客户定制的="://www.lemeizhai.com/Picture.asp?PicClassID=88" target="_self" style="font-size: 24px; text-decoration: underline;">二层别墅设计,结构错落有致,外观简约大气,布局实用性强,居住十分惬意。
实际效果:



基本信息:
别墅风格: 现代
占地面积:163㎡
开 间:12m
进 深:13.6m
建筑面积:300㎡
建筑占地:12m×13.6m
室内展示图:

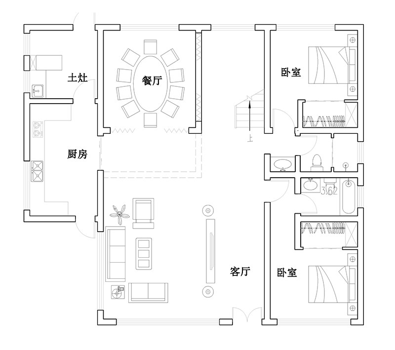
一层平面图:客厅、卧室、厨房、公卫。

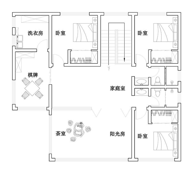
二层平面图:卧室、、公卫、棋牌室。
转载请注明出自轩鼎别墅设计:://www.lemeizhai.com/index.asp