有句话说的好,做人千万不能忘本,无论你在外打拼奋斗多少年,也别忘了养育你的至亲,建一栋好房,安一个好家。今天这款客户私人定制的三层半现代="://www.lemeizhai.com/Picture.asp" target="_self" style="font-size: 36px; text-decoration: underline;">别墅设计,外观精致有档次,室内布局实用,还带车库,让你的父母在老家倍感骄傲。
实际效果:

基本信息:
别墅风格:现代
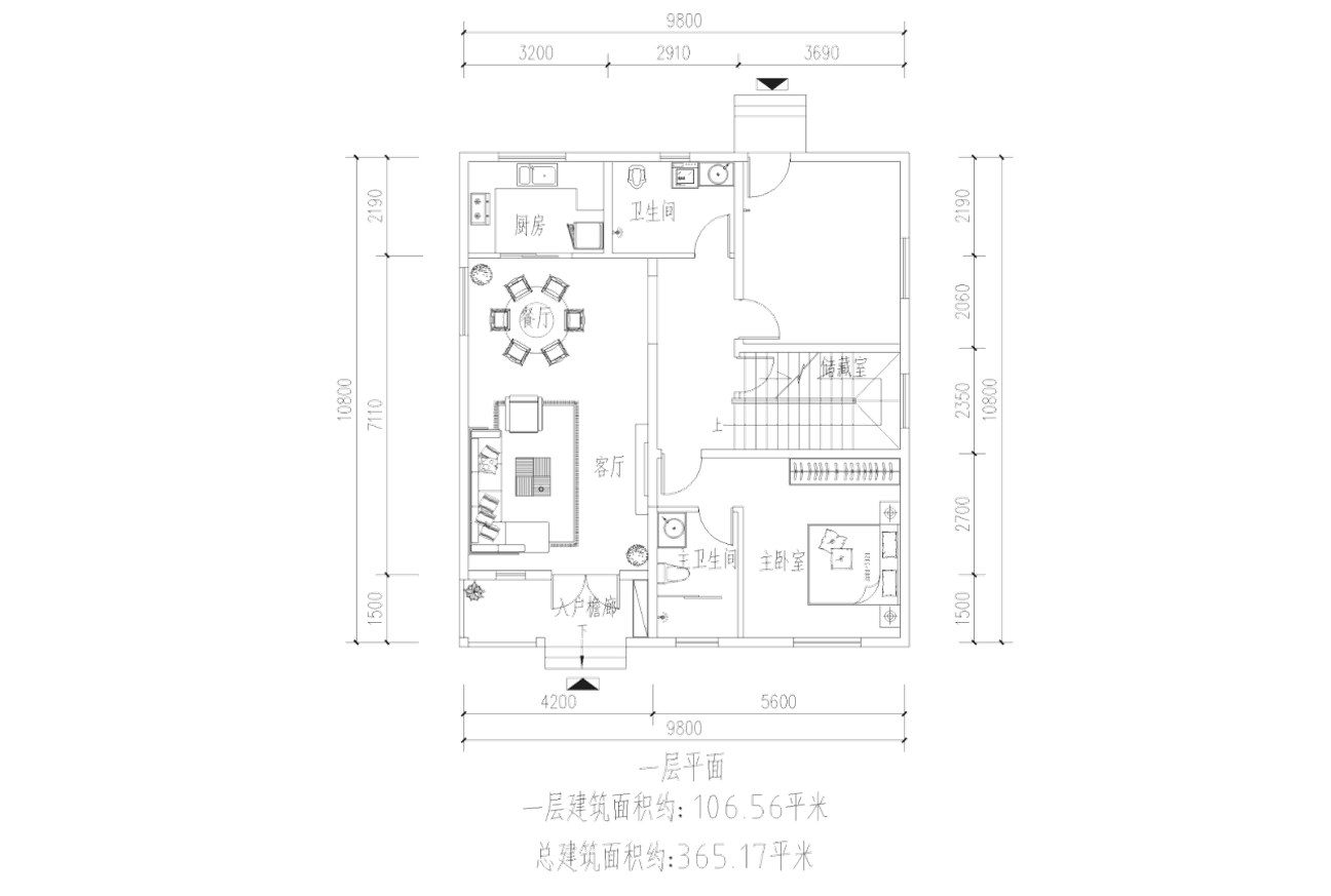
占地面积:106.56㎡
开 间:9.8m
进 深:10.8m
建筑面积:365.17㎡



室内展示图:

一层平面图:客厅、餐厅、厨房、卫生间、卧室、车库。

二层平面图:卧室、厕所、阳光房、阳台。

三层平面图:卧室、厕所、阳光房、阳台。

三层半:露台储藏室。
转载请注明出自轩鼎别墅设计:://www.lemeizhai.com/index.asp