前高后低的地形十分多见,尤其是临街路边的地皮,这种 户型怎么设计比较好?其实可以充分利用后面低洼的空间,设计一个地下室,在地下室里做茶室、酒窖、影音室等,都很不错,今天这款="://www.lemeizhai.com/Picture.asp?PicClassID=88" target="_self">二层别墅设计,就是这种户型的房屋。
实际效果:


基本信息:
开间:15米
进深:10.8米
占地面积:162平方米
建筑面积:325平方米
建筑结构:砖混结构
主体造价:52万元
室内展示图:

地下室平面图:健身房、换衣间、过道、家庭影院、棋牌室、2间卧室、卫生间。

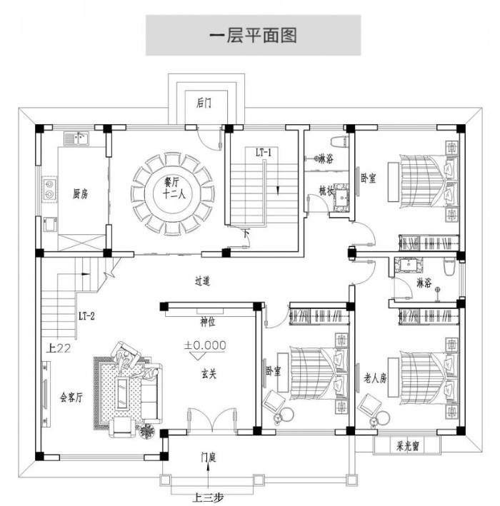
一层平面图:玄关、会客厅、过道、3间卧室、客厅、厨房、卫生间。

二层平面图:4间卧室、卫生间、衣帽间、露台。
转载请注明出自轩鼎别墅设计:://www.lemeizhai.com/index.asp