农村跟父母合建双拼别墅再适合不过了,不仅可以节约建房成本、省时省力,而且住得近,两家也可互相照应。这款现代双拼="://www.lemeizhai.com/" target="_self" style="font-size: 36px; text-decoration: underline;">别墅设计,外观优雅精致,造型左右对称,独门入户式,可以保护隐私,避免家庭琐事纠纷。
效果图:




基本信息:
别墅层数:二层
别墅风格:现代
占地面积:170.00㎡
开 间:17m
进 深:10m
建筑面积:425.00㎡
屋顶形式:坡屋顶
抗震级别:大于6级
建筑结构:砖混结构
室内展示图:

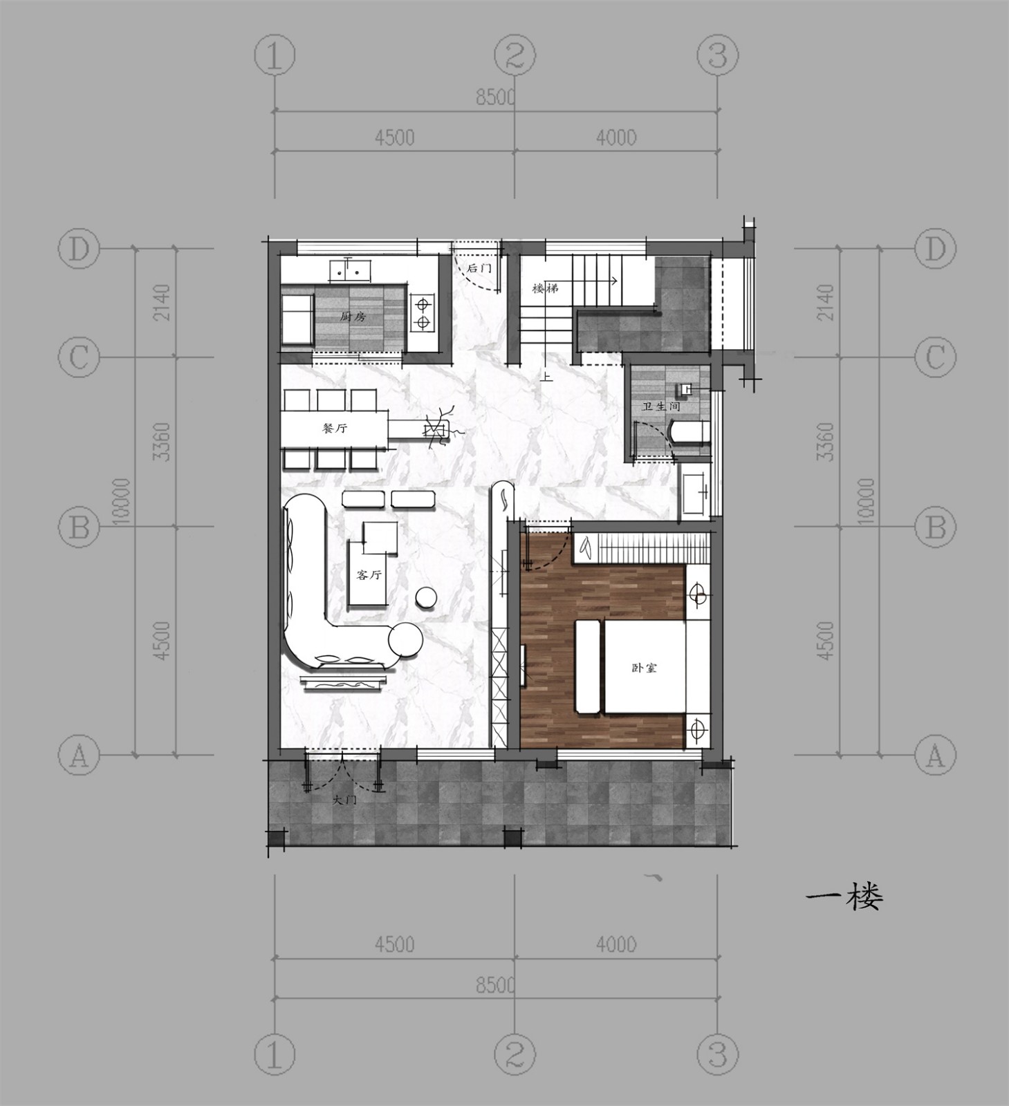
一层平面图:卧室、客厅、厨房、餐厅、卫生间。空间视野好

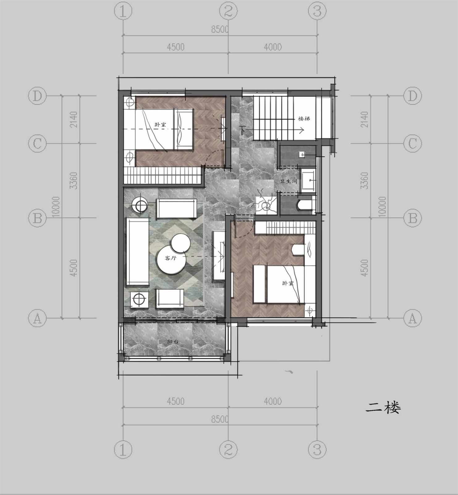
二层平面图:卧室、卫生间。 阳台。看起来卧室不多,但这款是双拼别墅,卧室够用。
转载请注明出自轩鼎别墅设计:://www.lemeizhai.com/index.asp