喜欢现代风格别墅的朋友, 可以选择这款钢结构的别墅设计,这样的房子不仅材料环保,寿命高,比传统房屋多12%使用面积,抗风性可达16级,保温和隔音性都能达到4星级酒店的水准
效果图:

基本信息:
别墅层数:二层别墅设计
别墅风格:现代="://www.lemeizhai.com/Picture.asp?PicClassID=88" target="_self" style="text-decoration: underline; font-family: 楷体, 楷体_GB2312, SimKai; font-size: 36px;">二层别墅设计
占地面积:143.20㎡
开 间:12.3m
进 深:12.6m
建筑面积:290.88㎡
屋顶形式:坡屋顶
抗震级别:大于6级
建筑结构:钢结构


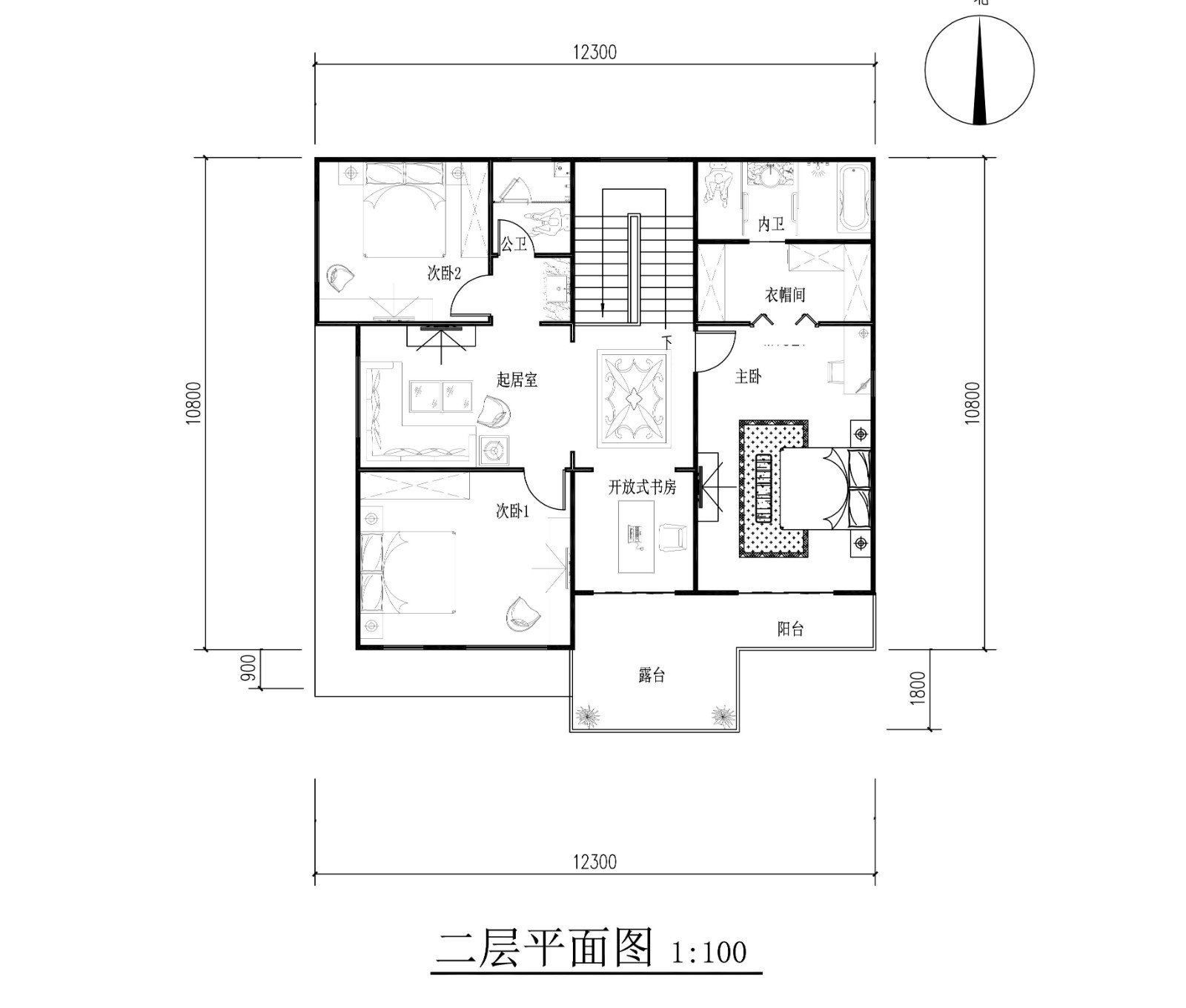
室内展示图:


一层的卧室专门给父母居住,一层设(内卫、公卫),厨房宽大,设有储物间可放置冰箱。二层特点多卧室有书房和衣帽间,露台设计方便舒适。
转载请注明出自轩鼎别墅设计:://www.lemeizhai.com/index.asp