人生在世,都逃不过衣食住行4个字,现在基本上都能实现衣食无忧,有车有房的人也比比皆是,所以也不会说有多羡慕,但是能在建的起豪宅的人,还真是会被羡慕的一群人。以前经常听老家人讲,哪家的谁谁谁在城里买了房,有多好多好。但是现在就不一样了,在老家建一套豪宅,这十里八乡的,不用宣传都知道了。看着这家人眼里都是羡慕!今天这款欧式="://www.lemeizhai.com/Picture.asp?PicClassID=91" target="_self" style="font-size: 20px; text-decoration: underline;">别墅设计推荐给大家
效果图:


基本信息:
别墅层数:三层
别墅风格:欧式
占地面积:223.16㎡
开 间:16.8m
进 深:16.1m
建筑面积:530.14㎡
屋顶形式:坡屋顶
抗震级别:大于6级
建筑结构:框架结构
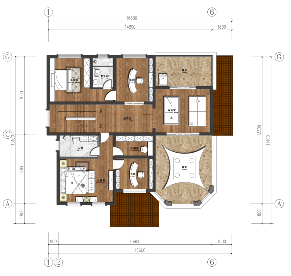
室内展示图:

主体布置如下:门厅、 客厅、厨房、餐厅、主卧 、厕所、书房、阳台、露台、衣帽间、杂物间。


转载请注明出自轩鼎别墅设计:://www.lemeizhai.com/index.asp