自己建房真不是件容易的事情,光是要找到称心如意的图纸就要花费不少功夫。建房的钱都是自己辛辛苦苦挣来的,所以一定要花在刀刃。今天这款朴素大方,对造价和宅基地都要求不高的="://www.lemeizhai.com/Picture.asp?PicClassID=91" target="_self" style="font-size: 20px; text-decoration: underline;">三层别墅设计,绝对适合大多数家庭。
效果图:

基本信息:
别墅层数: 三层
别墅风格: 现代
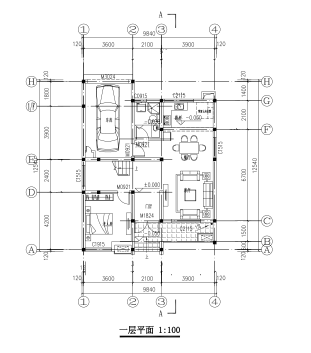
占地面积:123㎡
开 间:9.8m
进 深:12.6m
建筑占地:9.8m×12.6m
建筑面积:313.13㎡
预估造价:44.0万
建筑结构:砖混结构
室内展示图:
设计功能:

一层:门厅、客厅、厨房、餐厅、卫生间、卧室 。

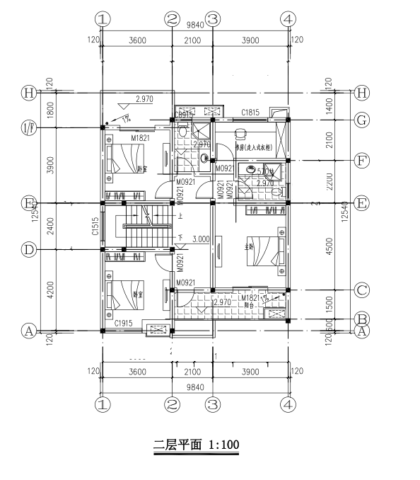
二层:卧室(卫生间、阳台)。

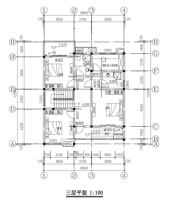
三层:卧室
转载请注明出自轩鼎别墅设计:://www.lemeizhai.com/index.asp