现在兴起自建别墅,一般都是以现代风格为主。现代别墅相较于传统别墅的最大区别就是更加实用舒适。传统别墅设计目的是体现主人的地位,或者仅考虑面子,内部布局不是很看重。而现代别墅则在兼顾外观的同时也要考虑到舒适性,对健康是否有利。人们可以根据需求喜好自由选择别墅的设计。我们之前为一位客户设计了一款占地仅102平的="://www.lemeizhai.com/Picture.asp?PicClassID=91" target="_self" style="font-size: 24px; text-decoration: underline;">三层别墅设计,预估造价:57.0万,兼顾了美观和实用性,是一款十分具有代表意义的现代别墅。下面分享给大家共同鉴赏
效果图:

基本信息:
别墅层数: 三层
别墅风格: 现代
占地面积:102㎡
开 间:12.3m
进 深:9.6m
建筑占地:12.3m×9.6m
建筑面积:384.09㎡
预估造价:57.0万
建筑结构:砖混结构


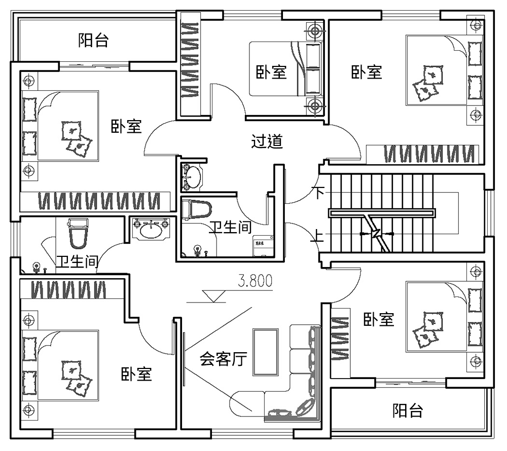
室内展示图:

设计功能:客厅、茶室、厨房、餐厅、卫生间,阳台、卧室。

设计功能:客厅、茶室、厨房、餐厅、卫生间,阳台、卧室。

转载请注明出自轩鼎别墅设计:://www.lemeizhai.com/index.asp