住惯了城市的人们对乡村总是有一种向往,现在在乡村还有块宅基地更是令人羡慕。看多了传统欧式的繁复装饰,这样的现代风正在流行,加上周边自然环境的辅助,真正的独立统一,千金不换。小编今天带来这款="://www.lemeizhai.com/Picture.asp?PicClassID=91" target="_self" style="font-size: 20px; text-decoration: underline;">三层现代风别墅设计,线条简约流畅,每一个细节都恰到好处,盖在农村一定是吸引了无数目光的地标性建筑。
效果图:

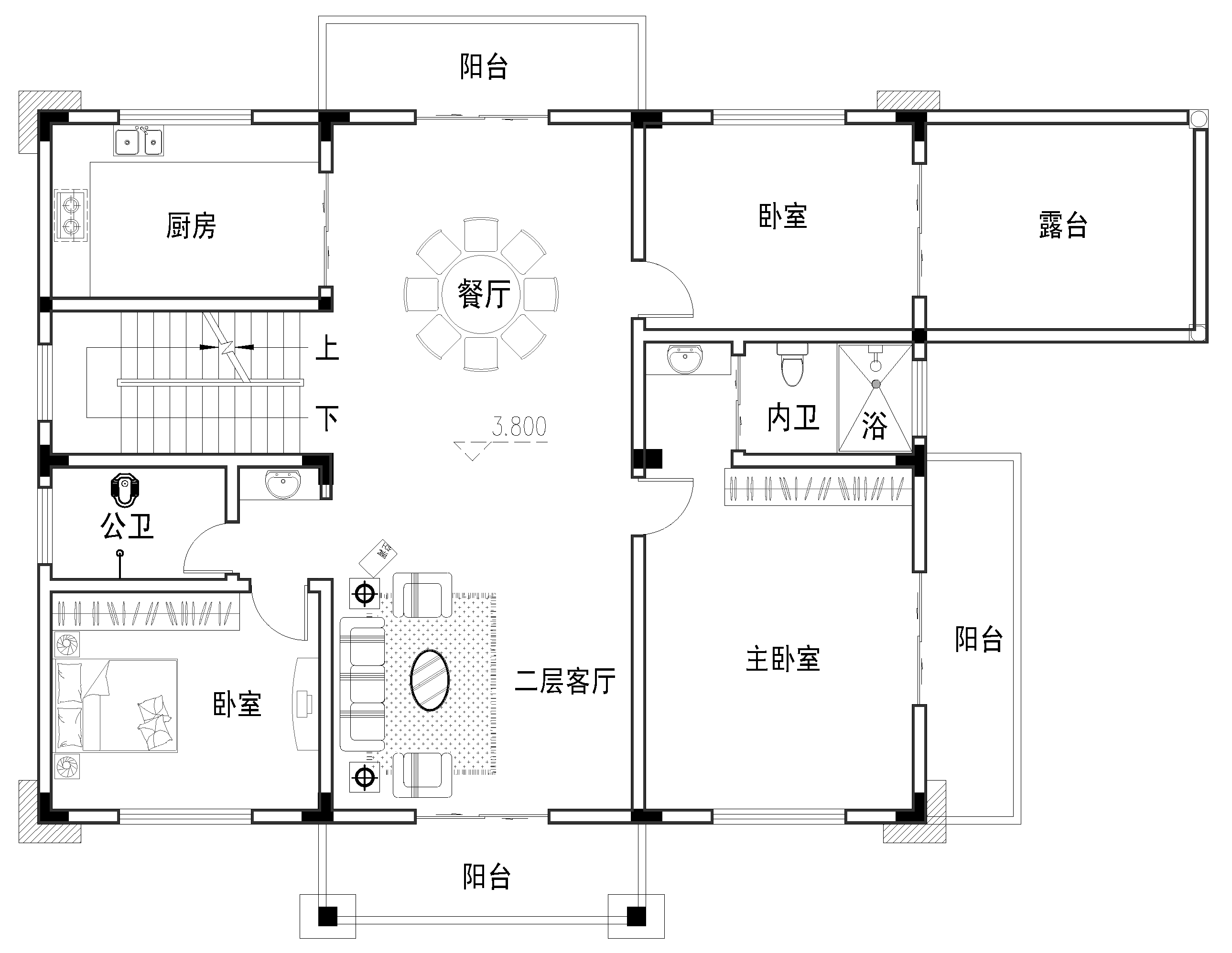
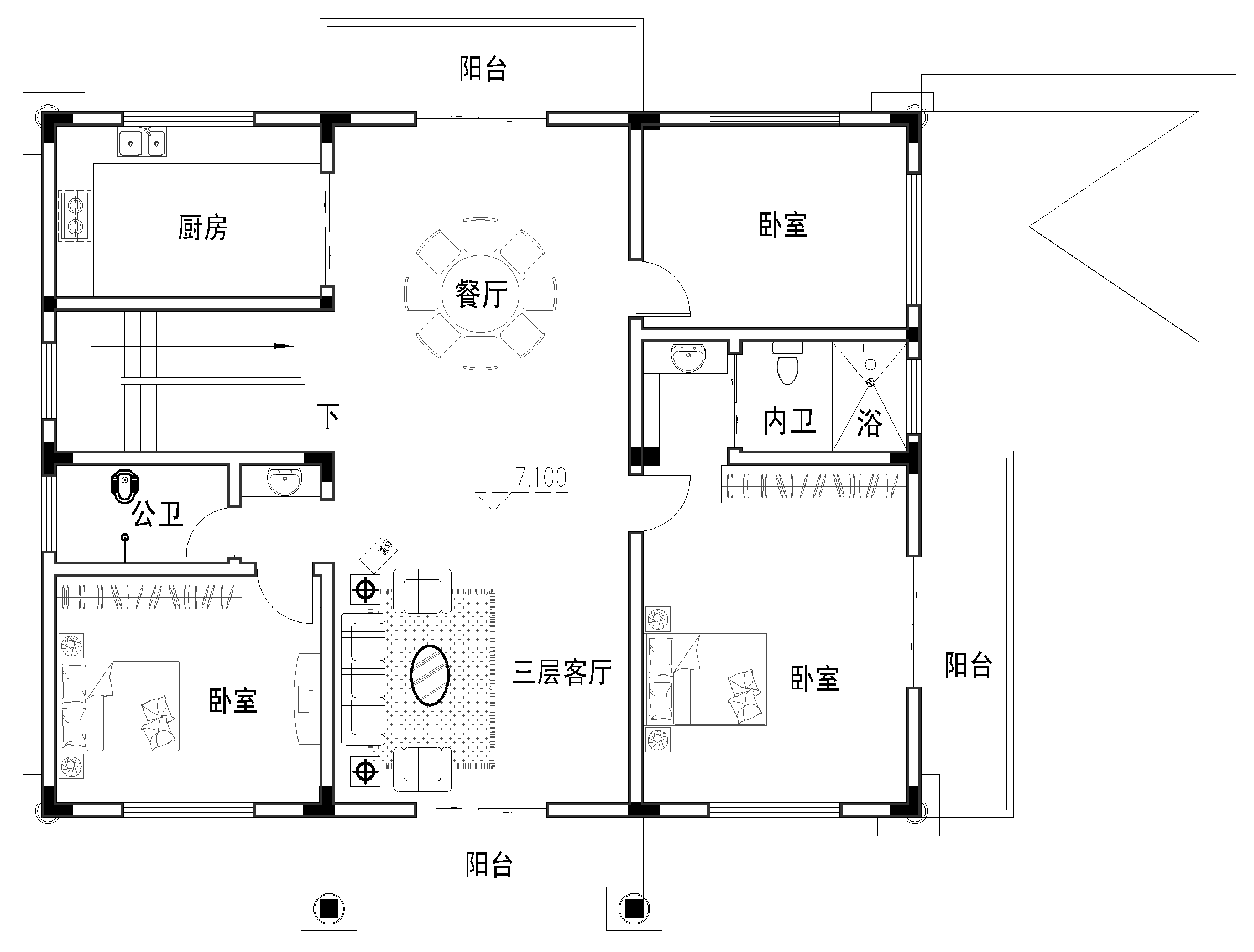
基本信息:
别墅层数: 三层
别墅风格: 现代
占地面积:207㎡
开 间:18.5m
进 深:11.2m
建筑占地:18.5m×11.2m
建筑面积:520㎡
预估造价:83.0万
建筑结构:框架结构
室内展示图:

主体设计:客厅、餐厅、厨房、卧室、公卫、阳台、露台。

。

转载请注明出自轩鼎别墅设计:://www.lemeizhai.com/index.asp