山西的刘总家乡的地批下来了,想盖一栋4层的中式别墅。心里已经有了一个大概的想法了。于是联系到我们,。刘总表达了对中式="://www.lemeizhai.com/Picture.asp?PicClassID=91" target="_self" style="font-size: 20px; text-decoration: underline;">别墅设计的一些想法。刘总房屋宅基地面积很充足,但想留个院子,还能盖个杂物间放放农具,所以面宽和进深我们的设计师优化到了10.8m×8.8m.占地占地面积:99㎡
效果图:

基本信息:
别墅层数: 四层
别墅风格: 新中式
占地面积:99㎡
开 间:10.8m
进 深:8.8m
建筑占地:10.8m×8.8m
建筑面积:434.3㎡
预估造价:58.0万
建筑结构:框架结构


室内展示图:

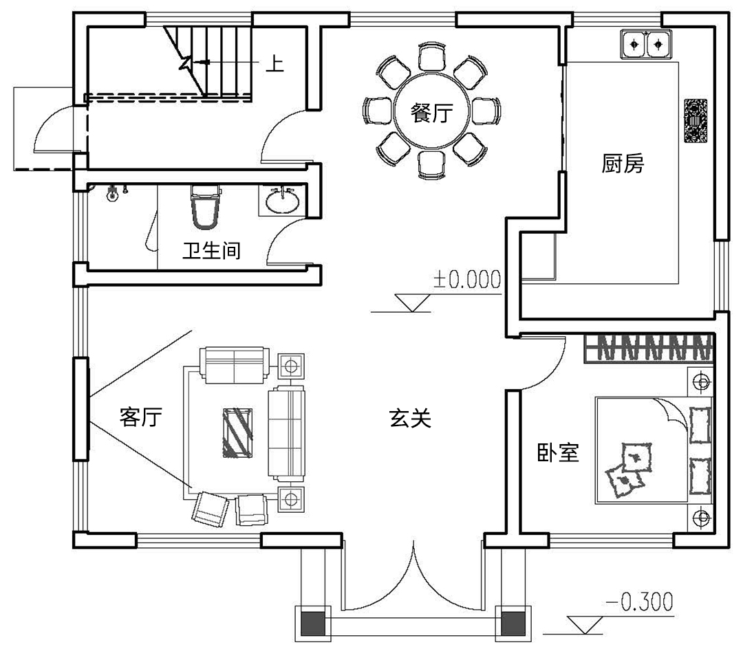
主体设计:客厅、餐厅、厨房、卧室、公卫、阳台、露台。

。


转载请注明出自轩鼎别墅设计:://www.lemeizhai.com/index.asp