生存和生活是不一样的,好的生活是精神和物质的双重给予,但物质仅仅只能起到点缀,重要的是心态和精神。就拿这款客户钟总定制的欧式别墅来说,这才是生活啊,浓浓田园风格,阳光房养养花。


图纸介绍:
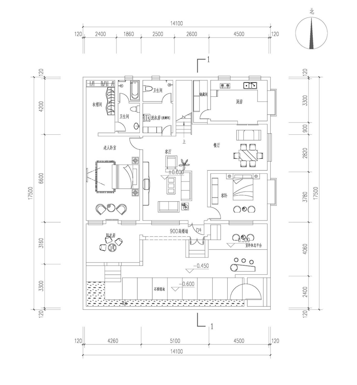
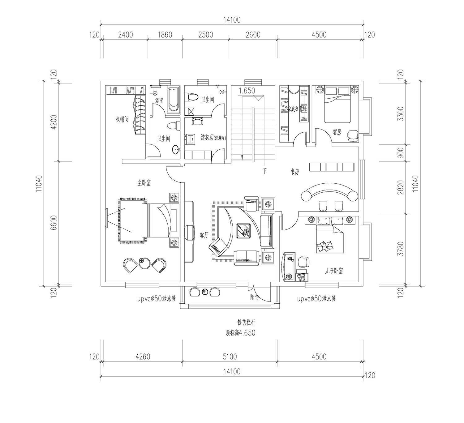
借鉴美式风格的="://www.lemeizhai.com/Picture.asp?PicClassID=88" target="_self" style="font-size: 24px; text-decoration: underline;">二层欧式别墅设计图,外观美观,内部布局合理,室内采光通风情况非常好。
设计功能二层
别墅风格:欧式
占地面积:246㎡
开 间:14.1m
进 深:17.5m
建筑占地:14.1m×17.5m
建筑面积:304㎡
预估造价:42.0万
建筑结构:砖混结构
功 能 间:书房 衣帽间


室内展示图:

主体设计:客厅、餐厅、厨房、卧室、公卫、阳台、露台。

。
转载请注明出自轩鼎别墅设计:="://www.lemeizhai.com/index.asp" target="_self">://www.lemeizhai.com/index.asp