过年了,最开心的就是和家人开开心心的聚在一起把酒言欢,聊聊发生的一些事儿。今天给大家推荐的是一款保暖措施特别完美的新中式="://www.lemeizhai.com/Picture.asp?PicClassID=88" target="_self" style="text-decoration: underline; font-family: 楷体, 楷体_GB2312, SimKai; font-size: 24px;">二层别墅,这款别墅是有庭院的,过年回家也有停车的地儿。图纸介绍:二层新中式别墅设计图,造型美观优雅,内部布局合理,通风情况良好。

设计功能:
别墅层数: 二层
别墅风格: 新中式
占地面积:149㎡
开 间:13m
进 深:11.5m
建筑占地:13m×11.5m
建筑面积:298㎡
预估造价:49.0万
建筑结构:砖混结构
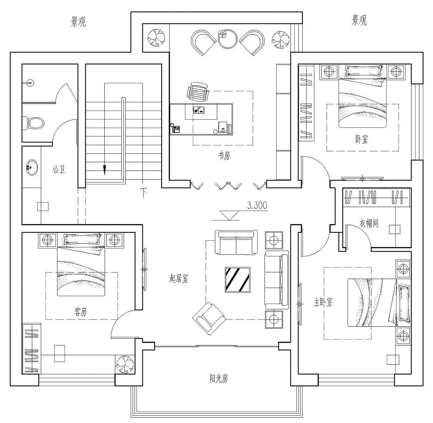
户型布局:
8房3厅2卫1厨


主体设计:

客厅、餐厅、厨房、卧室、公卫、阳台、露台。

。
转载请注明出自轩鼎别墅设计:://www.lemeizhai.com/index.asp