人逢喜事精神爽,不论是乔迁之喜还是添丁进口都是值得开心的事。今天是农历正月初9,小编给想要建新房的朋友推荐一款带庭院的="://www.lemeizhai.com/Picture.asp?PicClassID=88" target="_self" style="font-size: 24px; text-decoration: underline;">二层别墅设计。

图纸介绍:
这款别墅设计合理私密安全,是现代风格别墅最高预估价30万左右。
设计功能:
别墅层数: 二层
别墅风格: 现代
占地面积:65㎡
开 间:12.2m
进 深:5.4m
建筑占地:12.2m×5.4m
建筑面积:154㎡
预估造价:24.6万
建筑结构:砖混结构


主体设计:

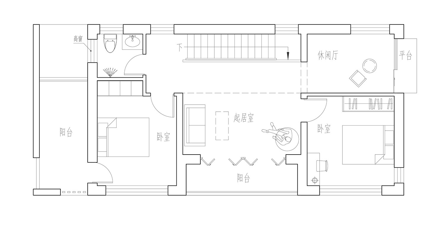
客厅、餐厅、厨房、卧室、公卫、阳台、露台。

。
="://www.lemeizhai.com/index.asp" target="_self" style="font-family: 楷体, 楷体_GB2312, SimKai; font-size: 24px; text-decoration: underline;">转载请注明出自轩鼎别墅设计:://www.lemeizhai.com/index.asp