轩鼎建筑小编今天继续又为大家整理了25套="://www.lemeizhai.com/" target="_self" title="农村自建房" style="text-decoration: underline; font-family: 微软雅黑, "Microsoft YaHei"; font-size: 16px;">农村自建房户型图,每套户型图都有自己独特的设计亮点,还没建房的朋友,快收藏起来吧
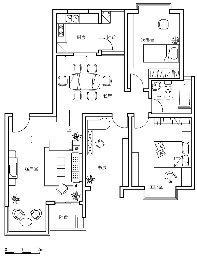
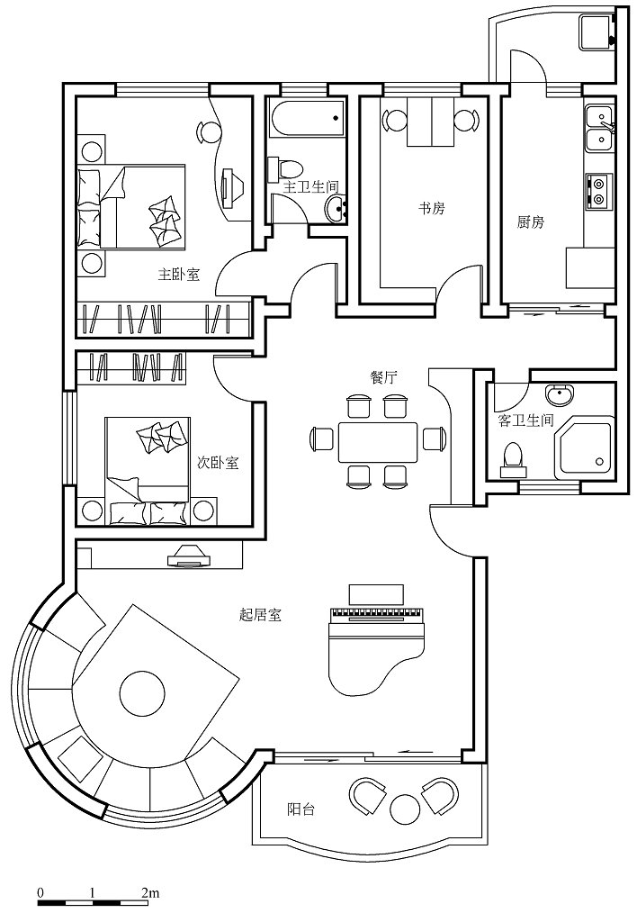
alt22:此户型有两间卧室,人口较多,可将书房改为卧室。房间内都是凸窗的设计,彰显业主最贵品质。餐厅和客厅都有阳台相连,延伸空间的同时也起到了通风效果。

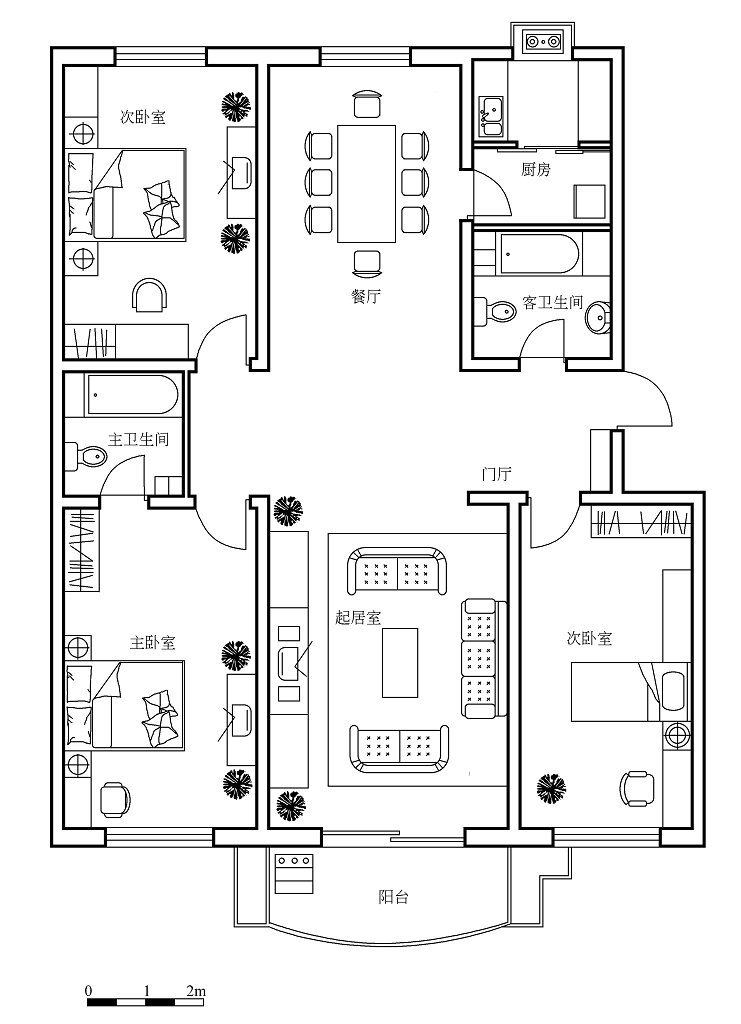
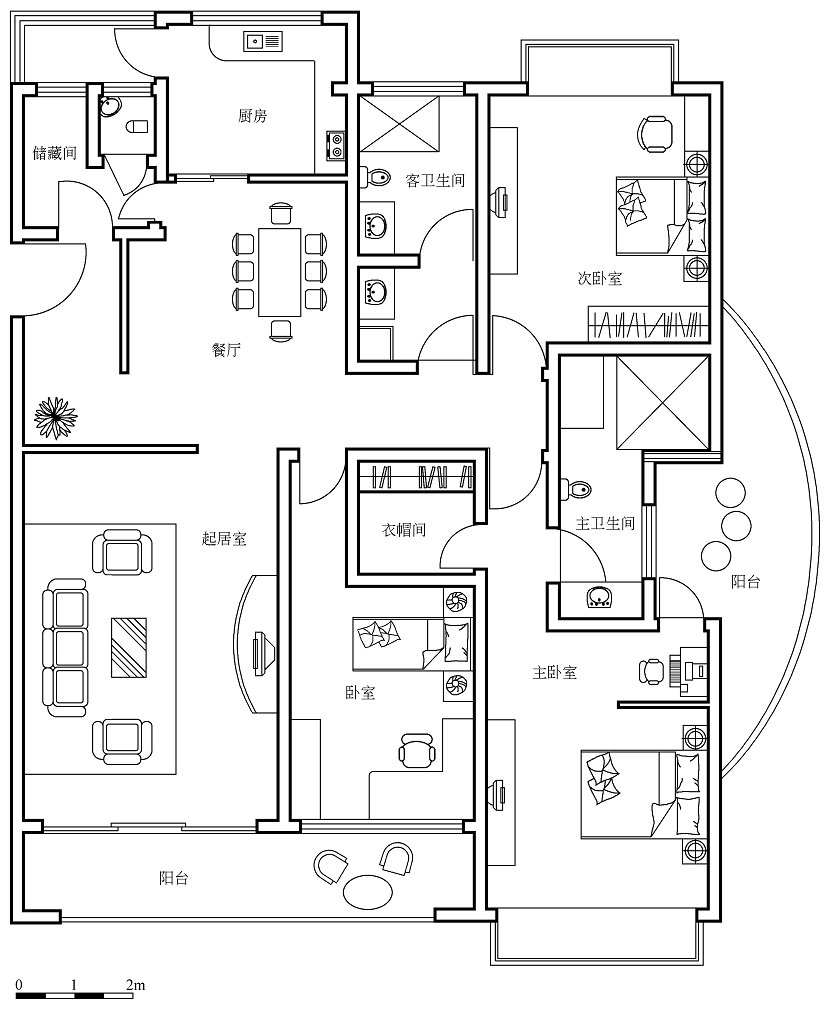
alt23:面积较大,入户左手边是厨房,可进入阳台,洗衣方便。共三间卧室,每间卧室带有飘窗设计,提高业主的生活品质,享受充足的室外阳光。

alt24:入户则是宽敞的大客厅并带有茶室,接待好友很是大气。上两步台阶是餐厅和厨房,以及两间卧室和一间书房。

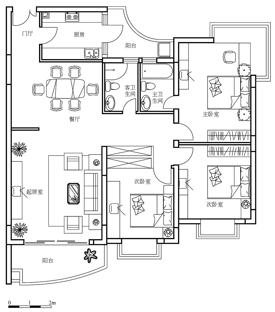
alt25:这套户型比较大,功能设施也齐全。主卧+2间次卧,满足一家人的生活住宿舒适感。客厅一角还设有吧台,休闲娱乐不错的选择。

alt26:主卧+次卧,可将带卫生间的房间作为老人房,方便老人的日常生活起居。其余两间次卧紧相连卫生间,为家人打造更方便的空间布局。

alt27:户型带有踏步,高低错落有致,百看不厌。多间储藏室,归纳杂物,使空间整洁干净。客厅八角窗设计,满足室内的采光,也展现建筑独特的设计感。

alt28:小编喜欢这款布局,开放式餐厅以及餐厅吧台,不仅每间卧室,连厨房餐厅等每间都带有阳台或者飘窗,采光效果简直没话说。阳光撒进来,每个角落几乎都可照到。

alt29:半圆式阳台,以及八角窗厨房,都彰显业主的生活品味。外观的建筑也是独特的美。可饱览室外的美景,还可看夜晚的满天星星。

alt30:宽敞的大客厅带全景阳台,增加室内的空间体验,以及美感。

alt31:本套户型三居室,舒适简单的生活空间,带有两处生活阳台,便于晒衣物。养花草,干湿分离卫生间的布局与卧室都是紧相连,更便于老人居住。

alt32:卧室*3,餐厅,厨房,,干湿分离卫生间,客厅。

alt33:本套户型的亮点起居室+休闲阳台,可谓家人打造更加宽敞的室内活动平台,实现室内娱乐生活。

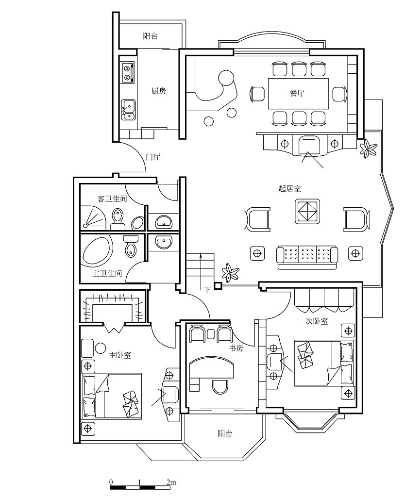
alt34:南北通透户型,客厅和餐厅的通风效果极佳,厨房面积不是很大,主卧+独立卫生间,让业主空间使得生活更加舒适。两间次卧满足亲友留宿的住宿需求。

alt35:

alt36:

alt37:

alt38:设有客厅,餐厅,厨房,保姆房,书房,卧室、卫生间。

alt39:进门则是宽敞的起居室,连接生活阳台。3间卧室+1间公卫,其中1间卧室带内卫,形成宽敞的生活空间,让家人的生活更加方便、舒适。

alt40:

alt41:主卫干湿分离,干净又卫生,日常居家方便。宽大的生活阳台,打造更好的生活体验,空气流通采光好,更方便日常晾晒,也为家人提供休闲娱乐的场地。

alt42:本套户型面积较大,三间大卧室,每间卧室带有飘窗设计。是一款不错的方案设计。

alt43:

alt44:

alt45:设有卧室*2、公卫、厨房、餐厅、储藏间、客厅,书房,阳台。合理利用空间,给予家人舒适的居家体验。

alt46:一层半设计,带有庭院设计,地下车库,观影厅,库房,设施齐全。地上一层不仅有小院,还带有三间卧室,厨房,餐厅,客厅等。家人打造温馨、便捷的居住环境。

alt47:两层设计方案。
