随着生活水平的提高,旧房翻新的家庭也越来越多,建好房子是每一个人的心愿,旧房翻新建别墅就是现在人们的选择。今天这款湖南邹总私人订制的="://www.lemeizhai.com/search.asp?SearchType=Software&imageField.x=13&imageField.y=34&SearchKey=%D0%C2%D6%D0%CA%BD" target="_self" style="font-size: 24px; text-decoration: underline;">新中式别墅设计推荐给大家。

图纸介绍:
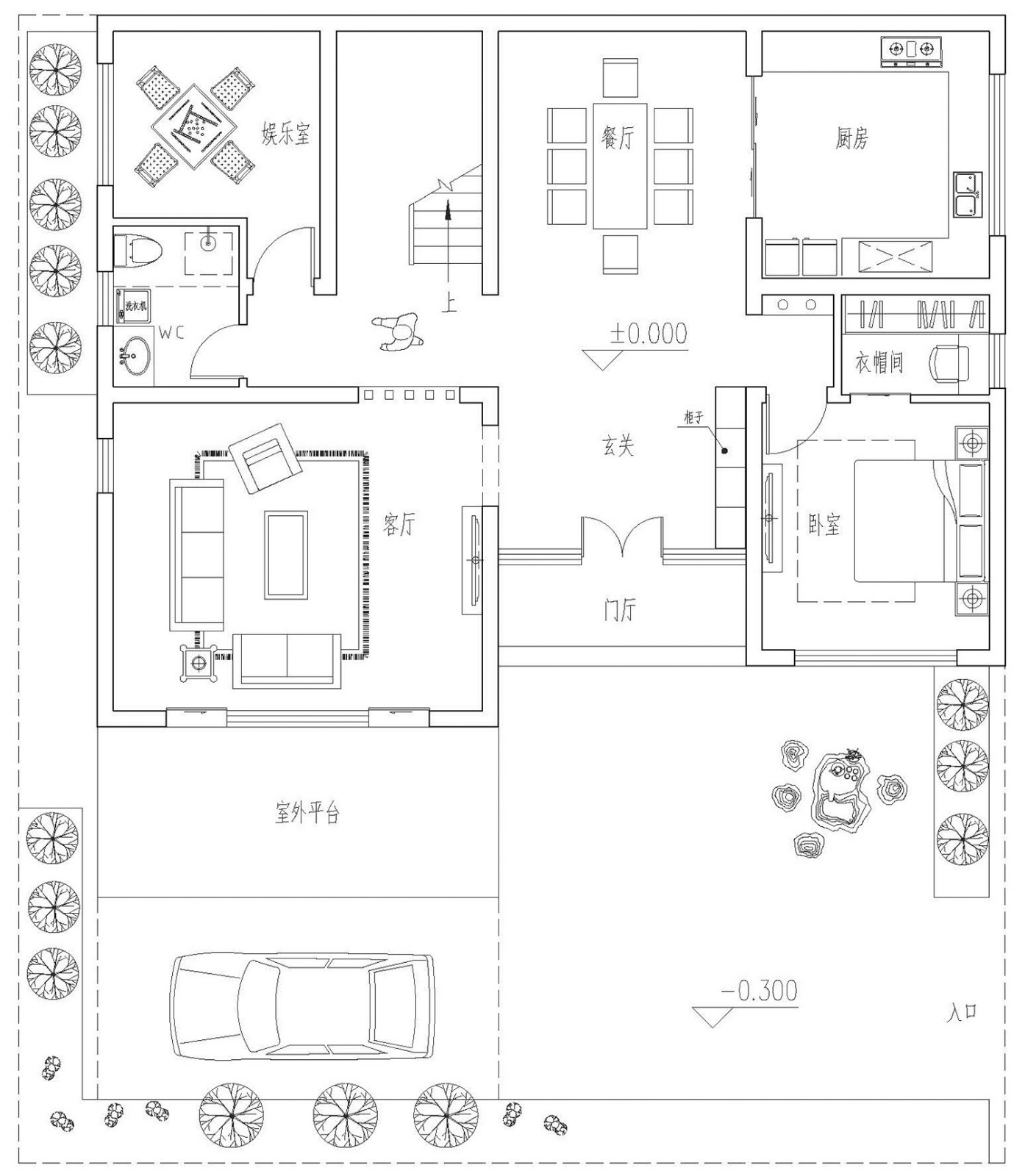
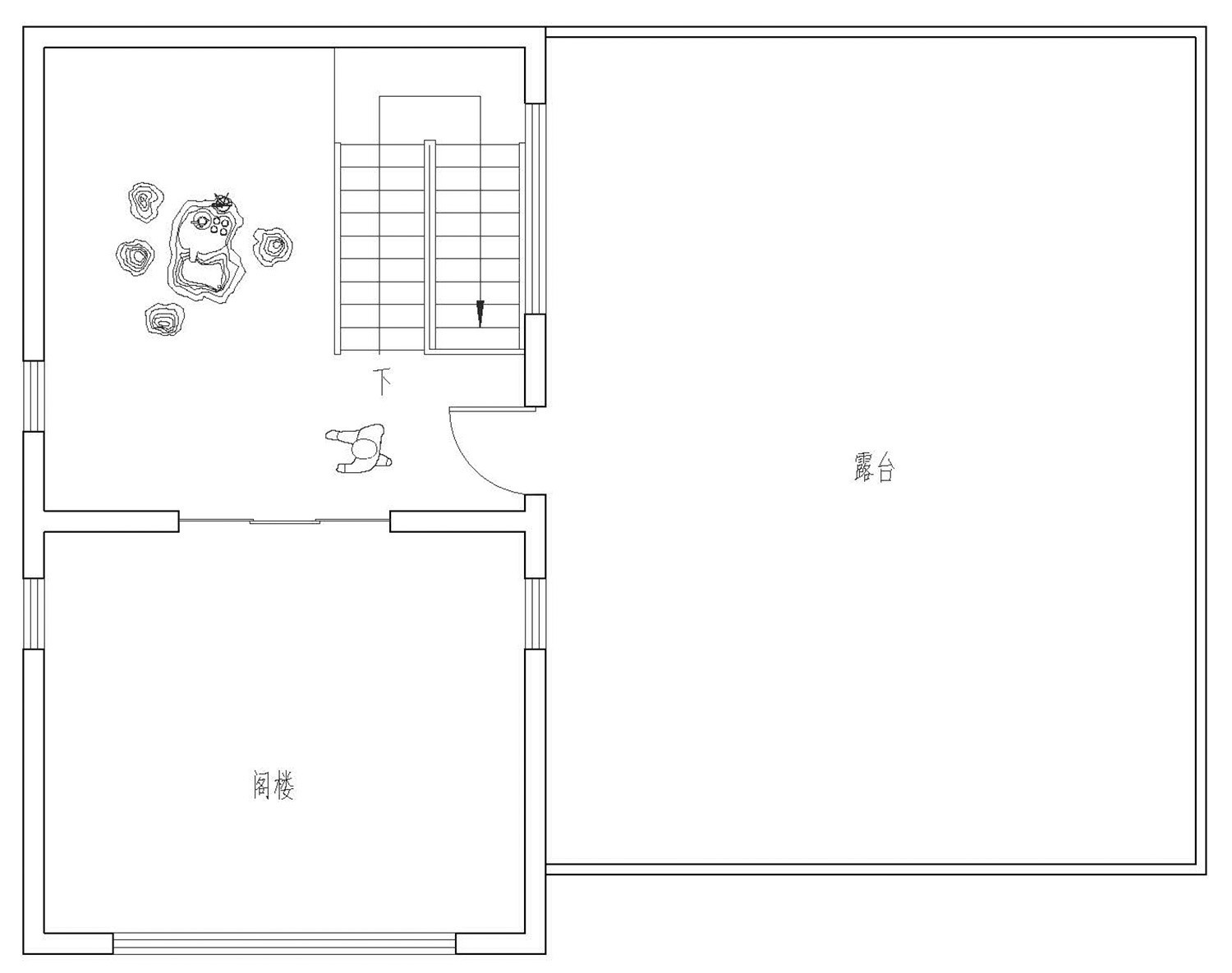
="://www.lemeizhai.com/Picture.asp?PicClassID=91" target="_self" style="font-family: 楷体, 楷体_GB2312, SimKai; font-size: 24px; text-decoration: underline;">农村自建房设计图纸,造型美观新颖,空间利用比较好,适合生活品味高的客户选择
设计信息:
别墅风格:中式
占地面积:140㎡
开 间:13.4m
进 深:10.5m
建筑占地:13.4m×10.5m
建筑面积:326㎡
预估造价:53.0万
建筑结构:砖混结构



主体设计:

客厅、餐厅、厨房、卧室、公卫、阳台、露台。

。

="://www.lemeizhai.com/index.asp" target="_self" style="font-family: 楷体, 楷体_GB2312, SimKai; font-size: 24px; text-decoration: underline;">转载请注明出自轩鼎别墅设计:://www.lemeizhai.com/index.asp